Описание объекта лот №: 976467
| Возможное использование: | Свободное назначение Бизнес |
| Операция: | Продажа бизнеса |
| Площадь: | 278.8 кв. м |
| Этаж: | цоколь |
| Местоположение | |
| Округ: | ВАО |
| Метро: | Бульвар Рокоссовского, Локомотив (МЦК), Щелковская |
| От метро: | 20 мин. пешком |
| Улица: | Открытое ш |
| ИФНС | № 7718 |
| Стоимость и условия | |
| Цена: |
65 000 000 руб. Сообщить о снижении цены
|
| Срок окупаемости: | 15 лет |
| Обеспечительный платеж: | Без залога |
| Характеристики | |
| Тип здания: | Жилые дома |
| Этажность здания: | 5 |
| Описание | |
|
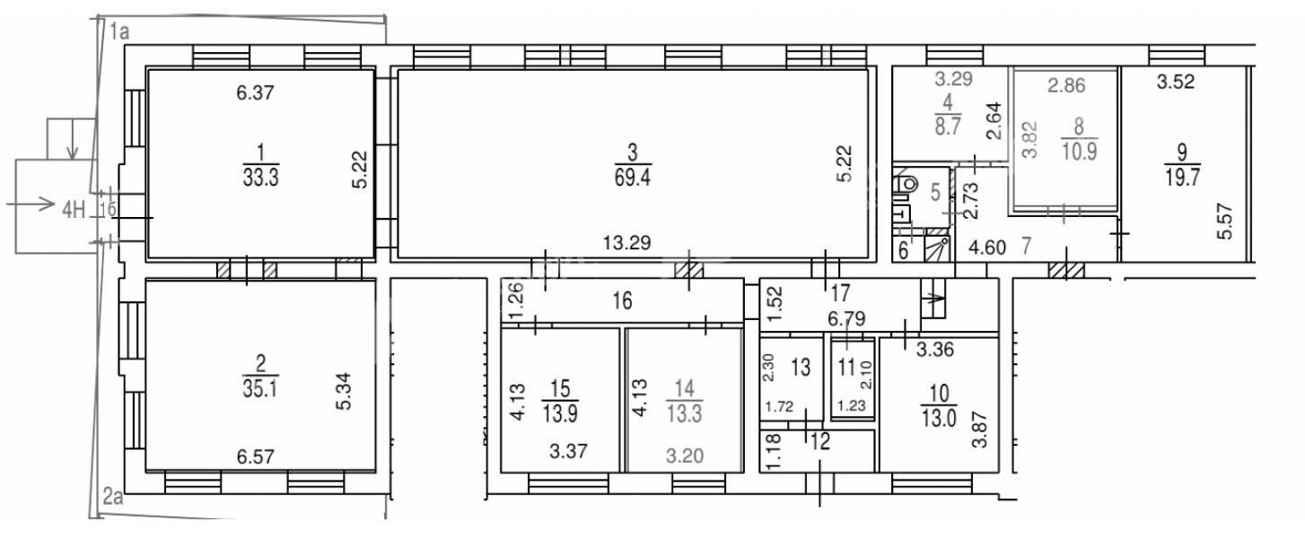
Лот №976467 Продажа готового арендного бизнеса Площадь: 278,8 м² Этаж: цоколь, отдельный вход Высота потолков: 2,6 м Электрическая мощность: 15 кВт Потенциал общей выручки при 100% заполнении: до 800 000 руб./мес Ежегодная индексация аренды: 7% Коммунальные платежи полностью компенсируются арендаторами Структура арендаторов и доходность Сдано в аренду: 120,3 м² (ПВЗ) Оставшаяся площадь создаёт возможность сформировать дополнительный стабильный пул арендаторов в сегментах услуг, торговли или FMCG. Объект уже генерирует доход, а дальнейшее заполнение площадей заметно увеличивает капитализацию. Локация и трафик Прямая ориентация на Открытое шоссе Интенсивность трафика: 27 473 чел./сутки Остановка общественного транспорта — 2 минуты пешком Станция метро «Бульвар Рокоссовского» — около 20 минут пешком В радиусе 10 минут ходьбы живёт плотный жилой массив В окружении: 2 школы, 2 детских сада Локация обеспечивает устойчивый поток покупателей и высокую ликвидность, что снижает риски простоя и ускоряет заполняемость. Формат предложения Объект продаётся как готовый арендный бизнес с частично сформированным потоком доходов и выраженным потенциалом роста за счёт дальнейшей коммерциализации. Подходит для инвесторов, ориентированных на стабильный денежный поток и увеличение доходности за счёт развития объекта.
Чтобы получить ПОДРОБНУЮ ПРЕЗЕНТАЦИЮ С ПЛАНИРОВКОЙ И ФОТОГРАФИЯМИ на этот объект, звоните. Высылаем в течение 15 минут по запросу! |
|
| Доп. услуги: | - возможна продажа в кредит |
| Контактная информация | |
| Лот №: | 976467 |
| Контактное лицо: | Апекс |
| Телефон: | 8 (495) 822-78-71 доб.313 |


