Описание объекта лот №: 975335
| Возможное использование: | Офисы |
| Операция: | Аренда |
| Тип аренды: | Прямая аренда |
| Площадь: | 3553.6 кв. м |
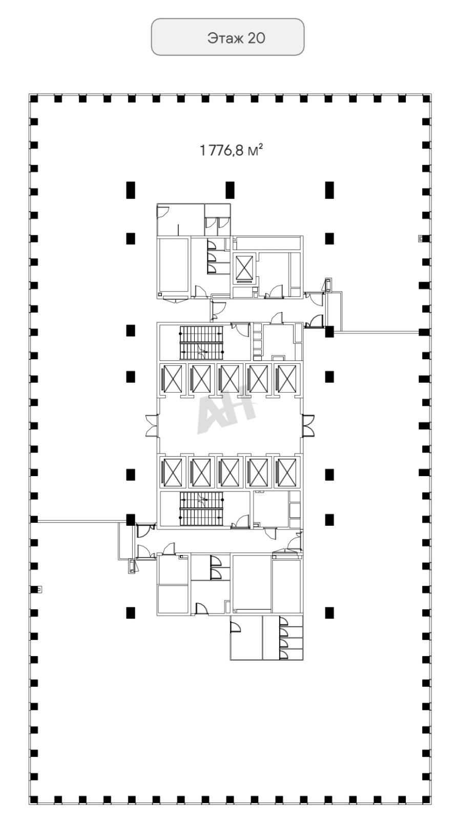
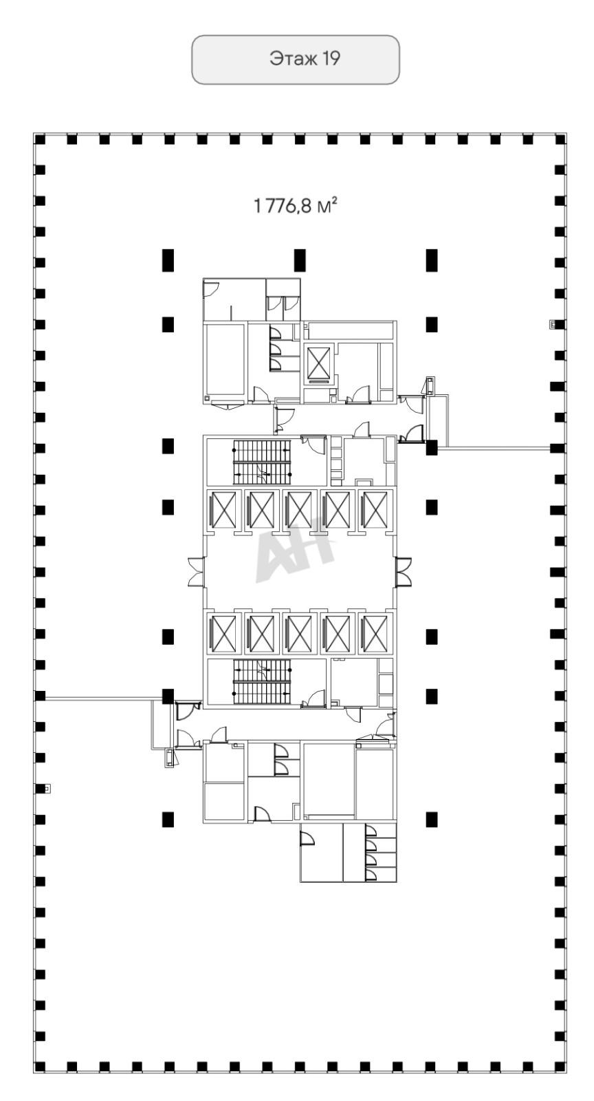
| Этаж: | 19 - 20-й |
| Местоположение | |
| Округ: | ЦАО |
| Метро: | Савеловская, Менделеевская, Белорусская |
| От метро: | 5 мин. пешком |
| Улица: | Бумажный проезд |
| ИФНС | № 7714 |
| Стоимость и условия | |
| Цена: | 19 248 667 руб. в месяц 65 000 руб. за 1м2 в год Сообщить о снижении цены ![]() |
| Форма налогообложения собственника: | НДС |
| Обеспечительный платеж: | 1 месяц |
| Эксплуатационные расходы включены: | ✓ |
| Характеристики | |
| Тип здания: | Бизнес центры класса А |
| Этажность здания: | 23 |
| Наличие кондиционирования: | ✓ |
| Наличие лифта: | ✓ |
| Наличие пропускной системы: | ✓ |
| Круглосуточный доступ: | ✓ |
| Наличие общепита в здании: | ✓ |
| Тип окон: | витринные |
| Описание | |
|
Лот №975335 В аренду предлагается офисное помещение общей площадью 3553,6 м², расположенное на 19 и 20 этажах бизнес-центра Tower B. Бизнес-центр является частью премиального офисного квартала STONE TOWERS в Белорусском деловом районе. Помещение сдаётся с отделкой формата shell&core. Высота потолков составляет 3,65 метра при шаге колонн 8,4 на 8,4 метра и глубине помещения 10 метров. Окна в пол оснащены функцией естественного проветривания. Для арендаторов предусмотрен доступ к местам на подземной парковке. Квартал обладает высокой транспортной доступностью. В пешей доступности находятся станции метро Савеловская и Белорусская. Обеспечен удобный выезд на Третье транспортное кольцо и Ленинградский проспект, а также быстрый доступ до делового центра Москва-Сити. Дорога до международного аэропорта Шереметьево занимает приблизительно 45 минут. Инфраструктура квартала включает благоустроенный парк площадью 5000 кв. м, современные инженерные системы и двухуровневый подземный паркинг. Для резидентов работают столовая, торговая галерея и сервис офисных услуг, доступные без выхода на улицу. Девелопер проекта, компания STONE, обладает 18-летним опытом создания коммерческой и жилой недвижимости бизнес и премиум-класса. С 2022 года компания лидирует в офисном сегменте по версии рейтинга РБК. Портфель компании составляет 2,5 млн кв. м объектов, из которых более 850 тыс. кв. м находятся в стадии активного строительства. Компания STONE обладает самым масштабным портфелем проектов офисной недвижимости класса А на московском рынке и входит в число наиболее устойчивых девелоперов по оценке Forbes. В управлении компании находятся 15 бизнес-центров класса А и 3 жилых комплекса категории бизнес+. Стоимость аренды: 65 000 руб/м2/год (19 248 667 руб. в месяц). В цену включено: эксплуатационные расходы. В цену не включено: затраты на электричество, коммунальные расходы, уборка.
Чтобы получить ПОДРОБНУЮ ПРЕЗЕНТАЦИЮ С ПЛАНИРОВКОЙ И ФОТОГРАФИЯМИ на этот объект, звоните. Высылаем в течение 15 минут по запросу! |
|
| Контактная информация | |
| Лот №: | 975335 |
| Контактное лицо: | Милица |
| Телефон: | 8 (495) 822-78-71 доб.263 |


