Описание объекта лот №: 971852
| Возможное использование: | Офисы |
| Операция: | Аренда |
| Тип аренды: | Субаренда |
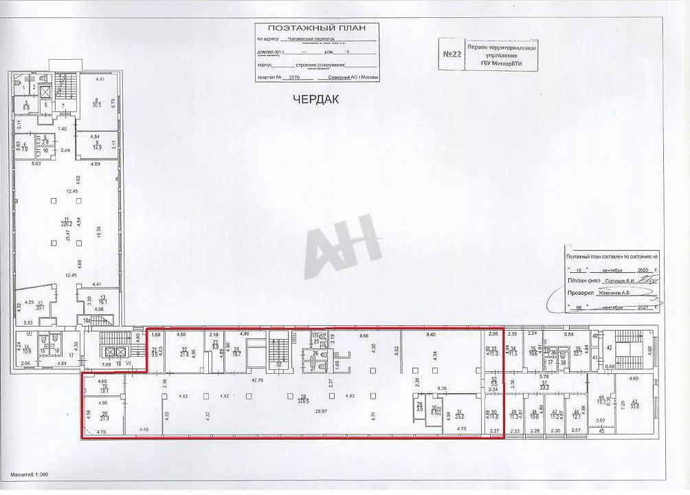
| Площадь: | 612.8 кв. м |
| Этаж: | 6 |
| Местоположение | |
| Округ: | СЗАО |
| Метро: | Сокол, Аэропорт, Панфиловская (МЦК) |
| От метро: | 10 мин. пешком |
| Улица: | Чапаевский пер |
| ИФНС | № 7743 |
| Стоимость и условия | |
| Цена: | 1 940 533 руб. в месяц 38 000 руб. за 1м2 в год Сообщить о снижении цены ![]() |
| Форма налогообложения собственника: | НДС |
| Обеспечительный платеж: | 2 месяца |
| Эксплуатационные расходы включены: | ✓ |
| Характеристики | |
| Тип здания: | Бизнес центры класса B |
| Этажность здания: | 6 |
| Наличие лифта: | ✓ |
| Наличие пропускной системы: | ✓ |
| Описание | |
|
Лот №971852 В аренду предлагается офисный блок общей площадью 612,75 м², расположенный на шестом этаже бизнес-центра «Сокол Плейс». Помещение имеет стандартную отделку. Состояние "за выездом арендатора". Планировочное решение представляет собой преимущественно открытое пространство, дополненное несколькими изолированными кабинетами, что позволяет эффективно организовать рабочие зоны. Для повышения уровня комфорта в арендуемом блоке обустроены персональные санузлы. Бизнес-центр расположен в удачном и доступном районе, что делает его привлекательным вариантом для компаний, для которых важны выгодное местоположение и комфортные условия для ведения бизнеса. Стоимость аренды: 38 000 руб/м2/год (1 940 534 руб. в месяц). В цену включено: эксплуатационные расходы. В цену не включено: затраты на электричество, коммунальные расходы.
Чтобы получить ПОДРОБНУЮ ПРЕЗЕНТАЦИЮ С ПЛАНИРОВКОЙ И ФОТОГРАФИЯМИ на этот объект, звоните. Высылаем в течение 15 минут по запросу! |
|
| Контактная информация | |
| Лот №: | 971852 |
| Контактное лицо: | Оксана Григорьевна |
| Телефон: | 8 (495) 822-78-71 доб.179 |


