Описание объекта лот №: 968333
| Возможное использование: | Свободное назначение Аптеки Бытовые услуги Кафе/рестораны Магазины Нотариусы/турфирмы Офисы Салоны красоты Шоурумы |
| Операция: | Продажа |
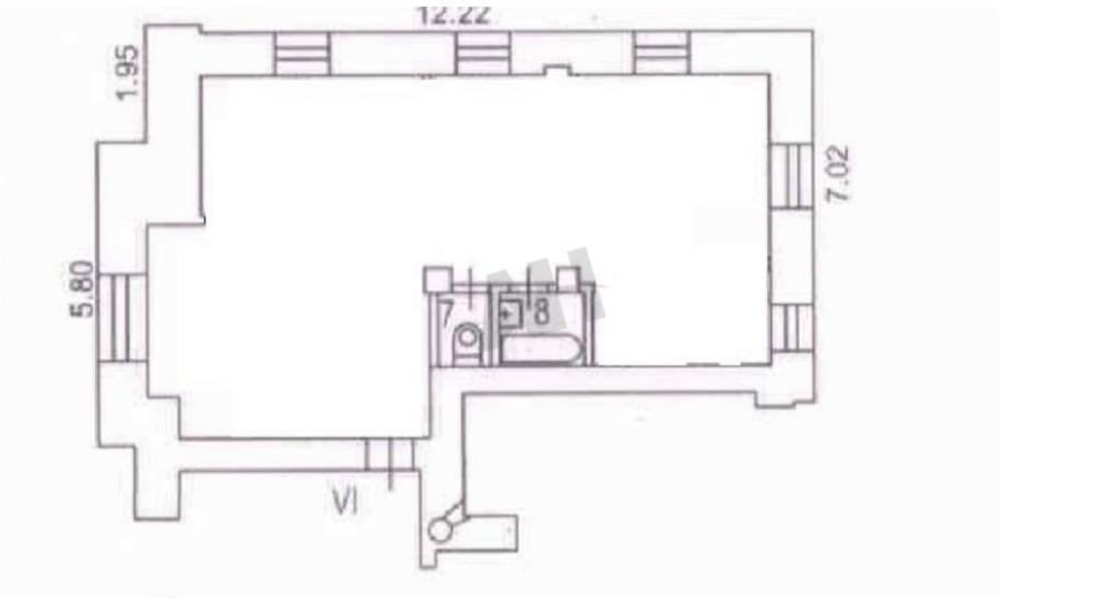
| Площадь: | 64 кв. м |
| Этаж: | 1 |
| Местоположение | |
| Округ: | СЗАО |
| Метро: | Смоленская АПЛ, Смоленская ФЛ, Краснопресненская |
| Улица: | Новый Арбат ул |
| ИФНС | № 7704 |
| Стоимость и условия | |
| Цена: |
33 000 000 руб. Сообщить о снижении цены
|
| Срок окупаемости: | 8 лет |
| Характеристики | |
| Тип здания: | Жилые дома |
| Этажность здания: | 7 |
| Наличие паркинга: | ✓ |
| Тип окон: | обычные |
| Электрическая мощность, кВт: | 10 |
| Описание | |
|
Лот №968333 Продается помещение площадью 64 квадратных метра, расположенное на пересечении Нового Арбата и Садового кольца. Угловое расположение обеспечивает хорошую видимость и стабильный пешеходный и автомобильный поток Район отличается удобным расположением и развитой инфраструктурой. Рядом находятся здание Правительства РФ, отель Marriott, ФГБУ НМИЦ РК (Национальный медицинский исследовательский центр реабилитации и курортологии), офисные здания, магазины и кафе. В пяти минутах ходьбы — станция метро “Смоленская”, что делает объект легко доступным для сотрудников и клиентов Во дворе предусмотрена парковка для посетителей. Помещение находится на первом этаже, имеет отдельный вход и витринные окна на фасад, что удобно для торговли, услуг, офиса или шоурума Сейчас помещение арендует Wildberries, что подтверждает востребованность локации и стабильность арендного спроса
Чтобы получить ПОДРОБНУЮ ПРЕЗЕНТАЦИЮ С ПЛАНИРОВКОЙ И ФОТОГРАФИЯМИ на этот объект, звоните. Высылаем в течение 15 минут по запросу! |
|
| Доп. услуги: | - возможна продажа в кредит |
| Контактная информация | |
| Лот №: | 968333 |
| Контактное лицо: | Елизавета |
| Телефон: | 8 (495) 822-78-71 доб.267 |


