Описание объекта лот №: 968317
| Возможное использование: | Свободное назначение Бизнес | 
| Операция: | Продажа бизнеса | 
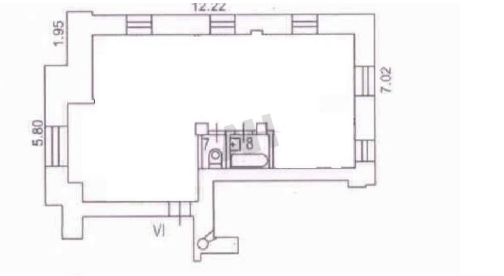
| Площадь: | 64 кв. м | 
| Этаж: | 1 | 
| Местоположение | |
| Округ: | СЗАО | 
| Метро: | Смоленская АПЛ, Смоленская ФЛ, Краснопресненская | 
| Улица: | Новый Арбат ул | 
| ИФНС | № 7704 | 
| Стоимость и условия | |
| Цена: | 
													33 000 000 руб. Сообщить о снижении цены  
													
												 | 
											
| Срок окупаемости: | 11 лет | 
| Характеристики | |
| Этажность здания: | 7 | 
| Наличие паркинга: | ✓ | 
| Тип окон: | обычные | 
| Описание | |
| 
													Лот №968317  Предлагается к покупке готовый арендный бизнес — коммерческое помещение площадью 64 квадратных метра, расположенное в самом сердце столицы на пересечении с Садовым кольцом, по адресу Новый Арбат, 30/9. Угловое расположение обеспечивает отличную визуальную экспозицию и высокий пешеходный и автомобильный трафик, что делает объект особенно привлекательным для арендаторов. Район отличается высокой деловой и туристической активностью. В пешей доступности находятся здание Правительства Российской Федерации, отель Marriott, ФГБУ НМИЦ РК — Национальный медицинский исследовательский центр реабилитации и курортологии, а также многочисленные офисные центры, рестораны, магазины и объекты городской инфраструктуры. Это одно из самых престижных и узнаваемых мест Москвы, где всегда сохраняется стабильный спрос на аренду коммерческих площадей. Во дворе здания предусмотрена парковка для посетителей и арендаторов, что является значительным преимуществом для центральной части города. Помещение занимает Wildberries — один из крупнейших и надежных арендаторов на рынке, что обеспечивает стабильный арендный поток и минимальные риски для инвестора. Коммерческие условия: • Минимальный арендный платёж (МАП) — 241 500 ₽ в месяц • Годовой арендный поток (ГАП) — 2 898 000₽ в год • Срок окупаемости — 11 лет Технические характеристики: • Площадь — 64 м² • Этаж — 1 • Планировка — открытая 
 Чтобы получить ПОДРОБНУЮ ПРЕЗЕНТАЦИЮ С ПЛАНИРОВКОЙ И ФОТОГРАФИЯМИ на этот объект, звоните. Высылаем в течение 15 минут по запросу!  | 
												|
| Доп. услуги: | - возможна продажа в кредит  | 
											
| Контактная информация | |
| Лот №: | 968317 | 
| Контактное лицо: | Елизавета | 
| Телефон: | 8 (495) 822-78-71 доб.267 | 


