Описание объекта лот №: 968021
| Возможное использование: | Офисы |
| Операция: | Аренда |
| Тип аренды: | Прямая аренда |
| Площадь: | 251.4 кв. м |
| Этаж: | 3 |
| Местоположение | |
| Город: | Химки, Красногорск |
| Метро: | Планерная, Сходненская, Пятницкое шоссе |
| Улица: | Ленинградское шоссе |
| ИФНС | № 5024 |
| Стоимость и условия | |
| Цена: | 405 592 руб. в месяц 19 360 руб. за 1м2 в год Сообщить о снижении цены ![]() |
| Форма налогообложения собственника: | НДС |
| Обеспечительный платеж: | 2 месяца |
| Коммунальные услуги включены: | ✓ |
| Эксплуатационные расходы включены: | ✓ |
| Характеристики | |
| Тип здания: | Бизнес центры класса B |
| Этажность здания: | 6 |
| Наличие кондиционирования: | ✓ |
| Наличие лифта: | ✓ |
| Наличие пропускной системы: | ✓ |
| Круглосуточный доступ: | ✓ |
| Наличие паркинга: | ✓ |
| Тип окон: | обычные |
| Описание | |
|
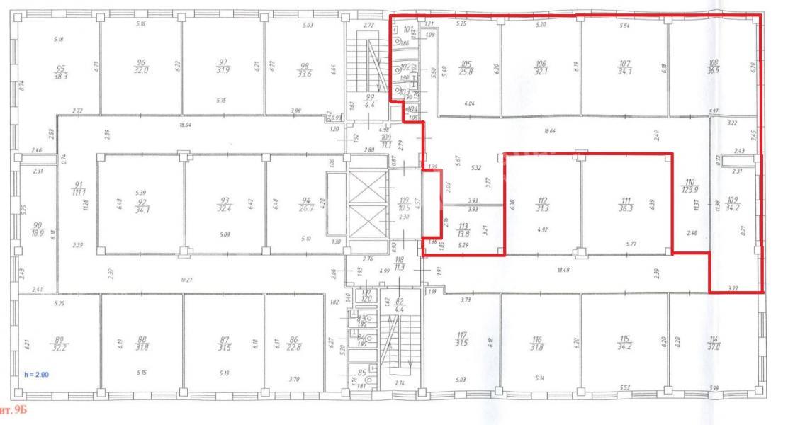
Лот №968021 Офисный блок свободен и готов к заезду. Площадь 251.4 м2, кабинетная планировка с ресепшн, зоной open-space, несколькими отдельными кабинетами и с/у в блоке. Высота потолков - 3 м. Состояние - офисная отделка. Арендатору предоставляется юридический адрес на весь срок действия договора. Прямая аренда. Минимальный срок аренды - 11 месяцев. Обеспечительный платёж в размере 2 месяцев арендной платы. Здание оснащено современными инженерными системами, включая вентиляцию, кондиционирование и пропускной контроль. Арендная ставка является комплексной и включает в себя НДС, эксплуатационные расходы и коммунальные платежи, за исключением электроэнергии. Объект расположен в бизнес-парке, до которого курсирует бесплатный автобус от станции метро Сходненская. Для гостей и клиентов организована гостевая парковка. Территория бизнес-парка работает в режиме 24/7 и обладает развитой инфраструктурой: здесь находятся банки, кафе и рестораны, фитнес-клуб с бассейном, отель категории 4 звезды, минимаркет, автомойка и другие объекты. Стоимость аренды: 19 360 руб/м2/год (405 592 руб. в месяц). В цену включено: коммунальные расходы, эксплуатационные расходы. В цену не включено: затраты на электричество, уборка.
Чтобы получить ПОДРОБНУЮ ПРЕЗЕНТАЦИЮ С ПЛАНИРОВКОЙ И ФОТОГРАФИЯМИ на этот объект, звоните. Высылаем в течение 15 минут по запросу!
Уважаемые коллеги, к сожалению мы не работаем по этому объекту с посредниками, но у нас есть партнерская программа по другим объектам! |
|
| Контактная информация | |
| Лот №: | 968021 |
| Контактное лицо: | Ринат |
| Телефон: | 8 (495) 822-78-71 доб.232 |


