Описание объекта лот №: 1061319
| Возможное использование: | Офисы |
| Операция: | Аренда |
| Тип аренды: | Прямая аренда |
| Площадь: | 125.8 кв. м |
| Этаж: | 12 |
| Местоположение | |
| Город: | Химки, Долгопрудный |
| Метро: | Ховрино, Планерная, Беломорская |
| Улица: | Ленинградское шоссе |
| ИФНС | № 5047 |
| Стоимость и условия | |
| Цена: | 214 824 руб. в месяц + НДС 20 492 руб. за 1м2 в год + НДС Сообщить о снижении цены ![]() |
| Форма налогообложения собственника: | НДС |
| Обеспечительный платеж: | 2 месяца |
| Эксплуатационные расходы включены: | ✓ |
| Характеристики | |
| Тип здания: | Бизнес центры класса А |
| Этажность здания: | 20 |
| Наличие кондиционирования: | ✓ |
| Наличие лифта: | ✓ |
| Наличие пропускной системы: | ✓ |
| Круглосуточный доступ: | ✓ |
| Наличие паркинга: | ✓ |
| Кол-во парковочных мест: | 5 |
| Наличие общепита в здании: | ✓ |
| Тип окон: | витринные |
| Описание | |
|
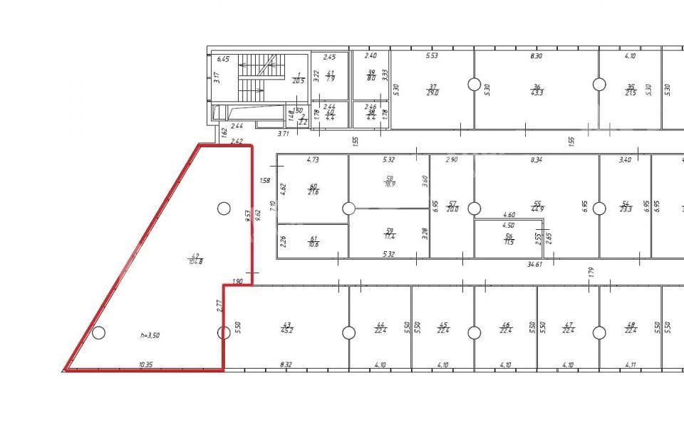
Лот №1061319 Предлагается к сдаче в аренду офисное помещение площадью 125,76 кв.м., расположенное на 12 этаже бизнес-центра «Химки One». Помещение находится в золотом углу здания и отличается полным панорамным остеклением, обеспечивающим естественное освещение и эстетичный вид на закатную сторону. Объект обладает выгодной транспортной доступностью. Обеспечен удобный заезд с МКАД, в непосредственной близости расположен международный аэропорт Шереметьево, город Химки и автобусная остановка. Для комфортного перемещения сотрудников ежедневно курсируют шаттлы до станций метро «Планерная» и «Водный стадион». Помещение полностью готово к эксплуатации и не требует дополнительных подготовительных работ. Офис доступен для заезда арендатора в кратчайшие сроки. Стоимость аренды: 20 492 руб/м2/год (214 825 руб. в месяц), НДС оплачивается дополнительно. В цену включено: эксплуатационные расходы. В цену не включено: затраты на электричество, коммунальные расходы, уборка.
Чтобы получить ПОДРОБНУЮ ПРЕЗЕНТАЦИЮ С ПЛАНИРОВКОЙ И ФОТОГРАФИЯМИ на этот объект, звоните. Высылаем в течение 15 минут по запросу! |
|
| Контактная информация | |
| Лот №: | 1061319 |
| Контактное лицо: | Ирина Владимировна |
| Телефон: | 8 (495) 822-78-71 доб.204 |


