Описание объекта лот №: 965872
| Возможное использование: | Свободное назначение Бытовые услуги Кафе/рестораны Магазины Медцентры Офисы Павильоны Салоны красоты Фитнес Фотостудии Шоурумы |
| Операция: | Аренда |
| Площадь: | 250 кв. м |
| Этаж: | цоколь |
| Местоположение | |
| Округ: | ЦАО |
| Метро: | Китай-город, Новокузнецкая, Таганская |
| От метро: | 9 мин. пешком |
| Улица: | Москворецкая наб |
| ИФНС | № 7705 |
| Стоимость и условия | |
| Цена: | 645 833 руб. в месяц 31 000 руб. за 1м2 в год Сообщить о снижении цены ![]() |
| Обеспечительный платеж: | 1 месяц |
| Коммунальные услуги включены: | ✓ |
| Эксплуатационные расходы включены: | ✓ |
| Электроэнергия включена: | ✓ |
| Делимся комиссией: | ✓ |
| Характеристики | |
| Тип здания: | Административные здания |
| Отдельный вход: | ✓ |
| Этажность здания: | 2 |
| Наличие мебели: | ✓ |
| Наличие кондиционирования: | ✓ |
| Наличие пропускной системы: | ✓ |
| Круглосуточный доступ: | ✓ |
| Кол-во парковочных мест: | 2 |
| Тип окон: | маленькие |
| Электрическая мощность, кВт: | 60 |
| Описание | |
|
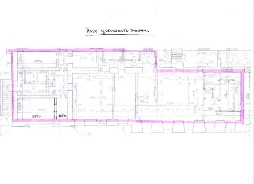
Лот №965872 Выплачиваем вознаграждение! В аренду предлагаются помещение с отдельным входом на цокольном этаже, площадью 250м2. Арендаторами могут выступать юридические лица и индивидуальные предприниматели. Объект расположен в Москве по адресу: Москворецкая набережная, дом 9, строение 1. Первая линия домов. Окна выходят на Москворецкую набережную. Помещения имеют два отдельных входа, также есть пожарный выход. Здание является объектом культурного наследия регионального значения. Есть санузлы и мокрые точки. Доступ 24/7. Помещения обеспечены полным комплексом инженерных коммуникаций: электроснабжением, водоснабжением и теплоснабжением. Подключение к сети Интернет арендаторы осуществляют самостоятельно. В здании установлено оборудование компании «Вымпелком». Обеспечивается круглосуточная охрана силами ЧОП, функционирует система видеонаблюдения и противопожарная сигнализация. Рассматриваются варианты заключения как краткосрочных, так и долгосрочных договоров аренды. Минимальный срок аренды составляет 11 месяцев. Предоставляется возможность получения юридического адреса. Прямая Аренда. Во дворе здания имеется возможность для парковки легковых автомобилей. Паркинг наземный, 2 М/М входит в стоимость, большее количество обсуждается! Дополнительные материалы по запросу. Стоимость аренды: 31 000 руб/м2/год (645 834 руб. в месяц). В цену включено: затраты на электричество, коммунальные расходы, эксплуатационные расходы. В цену не включено: уборка.
Чтобы получить ПОДРОБНУЮ ПРЕЗЕНТАЦИЮ С ПЛАНИРОВКОЙ И ФОТОГРАФИЯМИ на этот объект, звоните. Высылаем в течение 15 минут по запросу!
Уважаемые коллеги, мы работаем по этому объекту с посредниками и делимся комиссией в соответствии с нашей партнерской программой! |
|
| Youtube видео | |
| Контактная информация | |
| Лот №: | 965872 |
| Контактное лицо: | Ринат |
| Телефон: | 8 (495) 822-78-71 доб.232 |


