Описание объекта лот №: 962662
| Возможное использование: | Свободное назначение Банки Офисы |
| Операция: | Аренда |
| Площадь: | 225 кв. м |
| Этаж: | 1 |
| Местоположение | |
| Округ: | ЦАО |
| Метро: | Новослободская, Менделеевская, Маяковская |
| От метро: | 8 мин. пешком |
| Улица: | Лесная ул |
| ИФНС | № 7707 |
| Стоимость и условия | |
| Цена: | 890 625 руб. в месяц 47 500 руб. за 1м2 в год Сообщить о снижении цены ![]() |
| Форма налогообложения собственника: | НДС |
| Обеспечительный платеж: | 2 месяца |
| Эксплуатационные расходы включены: | ✓ |
| Характеристики | |
| Тип здания: | Бизнес центры класса B |
| Отдельный вход: | ✓ |
| Этажность здания: | 6 |
| Наличие кондиционирования: | ✓ |
| Наличие лифта: | ✓ |
| Наличие пропускной системы: | ✓ |
| Наличие паркинга: | ✓ |
| Наличие общепита в здании: | ✓ |
| Описание | |
|
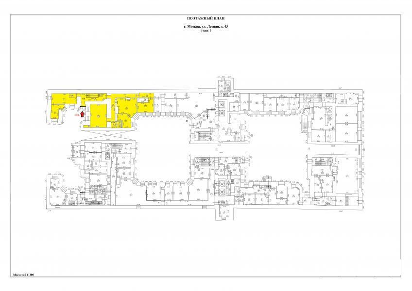
Лот №962662 Помещение свободного назначения на 1 этаже с отделкой и отдельным входом с улицы, общей площадью 225 м2, расположено в 8 мин от м Новослободская. Есть лифт. Состоит из кабинетов и с/у., имеет антресольный этаж. Варианты использования: Под Клиентский офис, Офис, Образовательный сегмент, Отделение банка и т.д. При необходимости возможно предоставление арендных каникул. Бизнес-центр оборудован современными инженерными системами и коммуникациями. Система контроля доступа: есть ограничения по времени. Система кондиционирования: сплит-система. Система вентиляции: приточно-вытяжная. Система пожаротушения: оповещение (сигнализация). Доступ 24/7. Юридический адрес предоставляется по запросу за дополнительное вознаграждение. Стоимость аренды: 47 500 руб/м2/год (890 625 руб. в месяц). В цену включено: эксплуатационные расходы. В цену не включено: затраты на электричество, коммунальные расходы, уборка.
Чтобы получить ПОДРОБНУЮ ПРЕЗЕНТАЦИЮ С ПЛАНИРОВКОЙ И ФОТОГРАФИЯМИ на этот объект, звоните. Высылаем в течение 15 минут по запросу! |
|
| Контактная информация | |
| Лот №: | 962662 |
| Контактное лицо: | Ринат |
| Телефон: | 8 (495) 822-78-71 доб.232 |


