Описание объекта лот №: 952343
| Возможное использование: | Офисы |
| Операция: | Аренда |
| Тип аренды: | Прямая аренда |
| Площадь: | 1588.9 кв. м |
| Этаж: | 6 |
| Местоположение | |
| Округ: | ЗАО |
| Метро: | Кунцевская, Славянский бульвар, Пионерская |
| От метро: | 3 мин. пешком |
| Улица: | Ивана Франко ул |
| ИФНС | № 7731 |
| Стоимость и условия | |
| Цена: | 4 965 313 руб. в месяц + НДС 37 500 руб. за 1м2 в год + НДС Сообщить о снижении цены ![]() |
| Форма налогообложения собственника: | НДС |
| Обеспечительный платеж: | 2 месяца |
| Эксплуатационные расходы включены: | ✓ |
| Характеристики | |
| Тип здания: | Бизнес центры класса А |
| Этажность здания: | 20 |
| Наличие кондиционирования: | ✓ |
| Наличие лифта: | ✓ |
| Наличие пропускной системы: | ✓ |
| Круглосуточный доступ: | ✓ |
| Наличие общепита в здании: | ✓ |
| Тип окон: | обычные |
| Описание | |
|
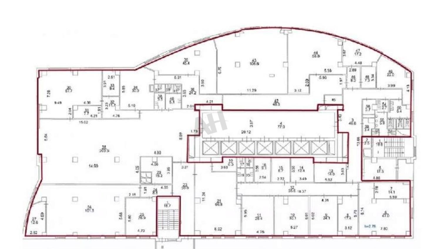
Лот №952343 В аренду предлагается целиком этаж в бизнес-центре Kutuzoff Tower. Планировка кабинетная,Офис только после ремонта. Помещение включает собственные санузлы и переговорные комнаты,серверную и кухню. Бизнес-центр расположен в престижном Кунцевском районе рядом со станцией метро Кунцевская. Высокая транспортная доступность обеспечивается близостью к Кутузовскому проспекту, Рублевскому шоссе и Третьему транспортному кольцу. Напротив в 3-х минутах БКЛ. Здание оснащено семью высокоскоростными лифтами. Общественные зоны, включая презентабельные входные группы и места общего пользования, поддерживаются в отличном состоянии. Для арендаторов доступен подземный паркинг, предназначенный для легковых автомобилей. Стоимость аренды: 37 500 руб/м2/год (4 965 313 руб. в месяц), НДС оплачивается дополнительно. В цену включено: эксплуатационные расходы. В цену не включено: затраты на электричество, коммунальные расходы, уборка.
Чтобы получить ПОДРОБНУЮ ПРЕЗЕНТАЦИЮ С ПЛАНИРОВКОЙ И ФОТОГРАФИЯМИ на этот объект, звоните. Высылаем в течение 15 минут по запросу! |
|
| Контактная информация | |
| Лот №: | 952343 |
| Контактное лицо: | Михаил Вячеславович |
| Телефон: | 8 (495) 822-78-71 доб.216 |


