Описание объекта лот №: 951723
| Возможное использование: | Свободное назначение Нотариусы/турфирмы Офисы Салоны красоты Фитнес Фотостудии Шоурумы |
| Операция: | Аренда |
| Тип аренды: | Прямая аренда |
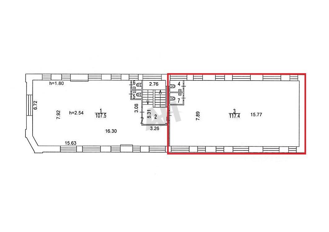
| Площадь: | 120 кв. м |
| Этаж: | 2 |
| Местоположение | |
| Округ: | ЮАО |
| Метро: | Полянка, Третьяковская, Добрынинская |
| От метро: | 1 мин. пешком |
| Улица: | Большая Полянка ул |
| ИФНС | № 7706 |
| Стоимость и условия | |
| Цена: | 393 750 руб. в месяц 39 375 руб. за 1м2 в год Сообщить о снижении цены ![]() |
| Обеспечительный платеж: | 1 месяц |
| Эксплуатационные расходы включены: | ✓ |
| Характеристики | |
| Тип здания: | Административные здания |
| Отдельный вход: | ✓ |
| Этажность здания: | 2 |
| Круглосуточный доступ: | ✓ |
| Наличие общепита в здании: | ✓ |
| Тип окон: | обычные |
| Электрическая мощность, кВт: | 20 |
| Описание | |
|
Лот №951723 Предлагаем в аренду помещения свободного назначения 120 кв.м., с отд. входом с улицы, возле единственного выхода из м. Полянка. Высокоинтенсивный трафик. Рекламные возможности. Престижный деловой район Москвы. Полностью открытая планировка, установлены гипсокартонные перегородки. Окна с двух сторон. Есть возможность устройства мокрых точек. Высота потолка от 1,8 до 2,5м. Отопление, ХВС, ГВС. Предоставляются арендные каникулы. Прямая аренда. Под: офис, компьютерный клуб, салон красоты, парикмахерская, интернет магазин, шоу-рум, услуги Стоимость аренды: 39 375 руб/м2/год (393 750 руб. в месяц). В цену включено: эксплуатационные расходы. В цену не включено: затраты на электричество, коммунальные расходы, уборка.
Чтобы получить ПОДРОБНУЮ ПРЕЗЕНТАЦИЮ С ПЛАНИРОВКОЙ И ФОТОГРАФИЯМИ на этот объект, звоните. Высылаем в течение 15 минут по запросу! |
|
| Контактная информация | |
| Лот №: | 951723 |
| Контактное лицо: | Александр Александрович |
| Телефон: | 8 (495) 822-78-71 доб.245 |


