Описание объекта лот №: 948498
| Возможное использование: | Офисы |
| Операция: | Аренда |
| Тип аренды: | Прямая аренда |
| Площадь: | 156.7 кв. м |
| Этаж: | 1 |
| Местоположение | |
| Округ: | ЮЗАО |
| Метро: | Профсоюзная, Вавиловская, Новые Черемушки |
| От метро: | 9 мин. пешком |
| Улица: | Вавилова ул |
| ИФНС | № 7736 |
| Стоимость и условия | |
| Цена: | 498 998 руб. в месяц 38 213 руб. за 1м2 в год Сообщить о снижении цены ![]() |
| Форма налогообложения собственника: | НДС |
| Обеспечительный платеж: | 1 месяц |
| Коммунальные услуги включены: | ✓ |
| Эксплуатационные расходы включены: | ✓ |
| Характеристики | |
| Тип здания: | Бизнес центры класса B |
| Этажность здания: | 11 |
| Наличие кондиционирования: | ✓ |
| Наличие лифта: | ✓ |
| Возможность подъезда фуры: | ✓ |
| Наличие пропускной системы: | ✓ |
| Наличие паркинга: | ✓ |
| Кол-во парковочных мест: | 228 |
| Наличие общепита в здании: | ✓ |
| Тип окон: | витринные |
| Описание | |
|
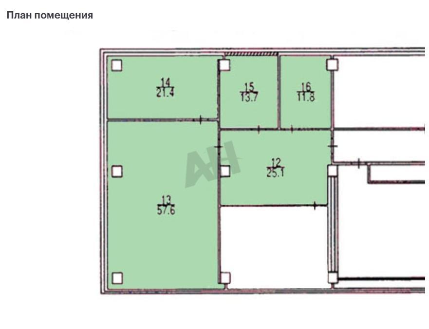
Лот №948498 Офис 156 м² с отдельным входом в БЦ класса B на Вавилова, 9 мин от метро Сдаётся в аренду офисное помещение площадью 156.7 м² на 1 этаже современного бизнес‑центра класса B на ул. Вавилова, в 9 минутах пешком от метро «Новые Черёмушки» и «Профсоюзная». Отдельный вход с улицы обеспечивает удобный доступ для сотрудников и клиентов и подчёркивает статус вашей компании. Планировка комфортно подходит для размещения команды 20–45 человек: возможна организация открытого пространства с выделенными кабинетами руководителей, переговорной, зоной ресепшн и мини‑кухней или серверной. Помещение в рабочем состоянии, готово к быстрым заездам без длительных ремонтных работ. В офисе установлена сплит‑система кондиционирования и приточно‑вытяжная вентиляция, предусмотрена система пожарного оповещения. Здание работает по пропускной системе, что позволяет контролировать доступ и при необходимости задавать временные ограничения. Для ваших IT‑задач подключены современные телекоммуникации: высокоскоростной интернет (50Мбит - 4200р/мес, телефония, виртуальная АТС. Бизнес‑центр расположен в деловом окружении ЮЗАО с удобными выездами на Ленинский и Нахимовский проспекты, что облегчает логистику как для сотрудников, так и для партнёров, приезжающих на автомобиле. На территории доступна парковка: можно арендовать машино‑места по ставке от 7 000 руб. в месяц. Для комфорта сотрудников в самом здании и поблизости работают кафе и рестораны, отделения банков, химчистка, пункты выдачи заказов и другая повседневная инфраструктура. Это делает офис удобной «рабочей базой» для IT‑компаний, консалтинга, проектных бюро, дистрибьюторов, шоу-румов, магазинов и других видов хозяйственной деятельности, которым нужен функциональный и представительный офис в ЮЗАО. Финансовые условия В арендную ставку включены коммунальные и эксплуатационные платежи. Отдельно оплачиваются электроэнергия, уборка, интернет, парковка. Обеспечительный платеж: 1 месяц. Возможен оперативный показ и быстрый выход на сделку. Звоните, чтобы получить актуальную информацию и презентацию помещения, а так же согласовать время просмотра. Стоимость аренды: 38 213 руб/м2/год (498 999 руб. в месяц). В цену включено: коммунальные расходы, эксплуатационные расходы. В цену не включено: затраты на электричество, уборка.
Чтобы получить ПОДРОБНУЮ ПРЕЗЕНТАЦИЮ С ПЛАНИРОВКОЙ И ФОТОГРАФИЯМИ на этот объект, звоните. Высылаем в течение 15 минут по запросу! |
|
| Контактная информация | |
| Лот №: | 948498 |
| Контактное лицо: | Станислав Игоревич |
| Телефон: | 8 (495) 822-78-71 доб.228 |


