Описание объекта лот №: 945078
| Возможное использование: | Свободное назначение Аптеки Банки Бытовые услуги Магазины Медцентры Офисы Салоны красоты Шоурумы Новостройки |
| Операция: | Продажа |
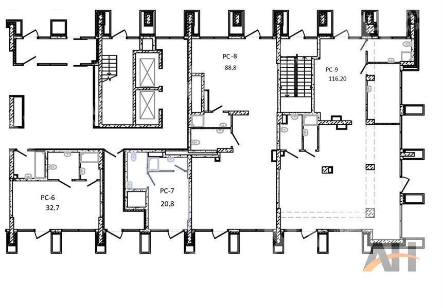
| Площадь: | 116.2 кв. м |
| Этаж: | 1 |
| Местоположение | |
| Округ: | ВАО |
| Метро: | Площадь Ильича, Римская, Москва-Товарная (МЦД) |
| Улица: | Золоторожский Вал ул |
| Стоимость и условия | |
| Цена: |
187 663 000 руб. Сообщить о снижении цены
|
| Характеристики | |
| Тип здания: | Жилые дома |
| Этажность здания: | 14 |
| Наличие лифта: | ✓ |
| Наличие паркинга: | ✓ |
| Срок сдачи: | 2028 г. (4 кв.) |
| Описание | |
|
Лот №945078 Предлагается к продаже коммерческое помещение площадью 116,20 кв. м., расположенное на первом этаже в корпусе С комплекса апартаментов STONE Rise (первая очередь). Объект находится по адресу: г. Москва, ул. Золоторожский Вал, д. влад. 11, стр. 32-34. Помещение имеет статус свободного назначения, что позволяет разместить практически любой вид бизнеса: медицинский центр, салон красоты, офис, ресторан, банковское отделение, торговую точку или предприятие сферы услуг. Сдача корпуса в эксплуатацию запланирована на четвертый квартал 2028 года. Здание является 14-этажным.
Чтобы получить ПОДРОБНУЮ ПРЕЗЕНТАЦИЮ С ПЛАНИРОВКОЙ И ФОТОГРАФИЯМИ на этот объект, звоните. Высылаем в течение 15 минут по запросу! |
|
| Доп. услуги: | - возможна продажа в кредит |
| Контактная информация | |
| Лот №: | 945078 |
| Контактное лицо: | НОВОСТРОЙКИ |
| Телефон: | 8 (495) 822-78-71 доб.211 |



