Описание объекта лот №: 945076
| Возможное использование: | Свободное назначение Аптеки Банки Бытовые услуги Магазины Медцентры Офисы Салоны красоты Шоурумы Новостройки |
| Операция: | Продажа |
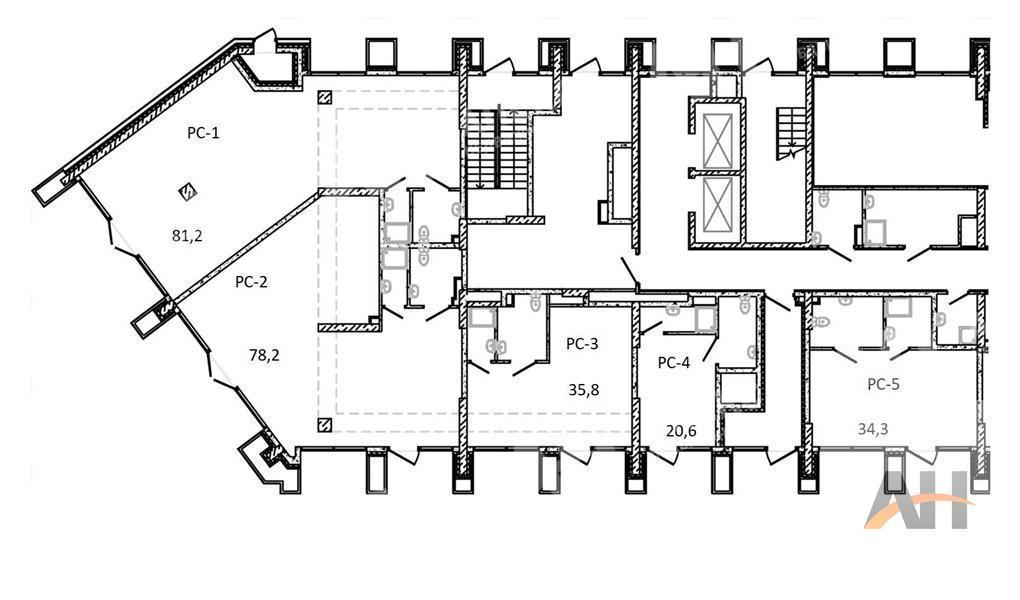
| Площадь: | 81.2 кв. м |
| Этаж: | 1 |
| Местоположение | |
| Округ: | ВАО |
| Метро: | Площадь Ильича, Римская, Москва-Товарная (МЦД) |
| Улица: | Золоторожский Вал ул |
| Стоимость и условия | |
| Цена: |
105 966 000 руб. Сообщить о снижении цены
|
| Характеристики | |
| Тип здания: | Жилые дома |
| Этажность здания: | 14 |
| Наличие лифта: | ✓ |
| Наличие паркинга: | ✓ |
| Срок сдачи: | 2028 г. (4 кв.) |
| Описание | |
|
Лот №945076 Предлагается к продаже коммерческое помещение общей площадью 81,20 кв. м., расположенное на первом этаже в современном комплексе STONE Rise. Объект находится в корпусе С первой очереди строительства. Общее количество этажей в здании — четырнадцать. Помещение обладает универсальным свободным назначением, что позволяет использовать его для широкого спектра бизнес-направлений. Оно идеально подойдет для организации медицинского центра, салона красоты, парикмахерской, офиса, ресторана, бара, банка, пункта бытовых услуг, торговой точки или магазина. Сдача объекта в эксплуатацию запланирована на четвертый квартал 2028 года. Локация по адресу: город Москва, улица Золоторожский Вал, владение 11, строение 32-34, обеспечивает высокую проходимость и отличную транспортную доступность.
Чтобы получить ПОДРОБНУЮ ПРЕЗЕНТАЦИЮ С ПЛАНИРОВКОЙ И ФОТОГРАФИЯМИ на этот объект, звоните. Высылаем в течение 15 минут по запросу! |
|
| Доп. услуги: | - возможна продажа в кредит |
| Контактная информация | |
| Лот №: | 945076 |
| Контактное лицо: | НОВОСТРОЙКИ |
| Телефон: | 8 (495) 822-78-71 доб.211 |


