Описание объекта лот №: 945074
| Возможное использование: | Свободное назначение Аптеки Банки Бытовые услуги Магазины Медцентры Офисы Салоны красоты Шоурумы Новостройки |
| Операция: | Продажа |
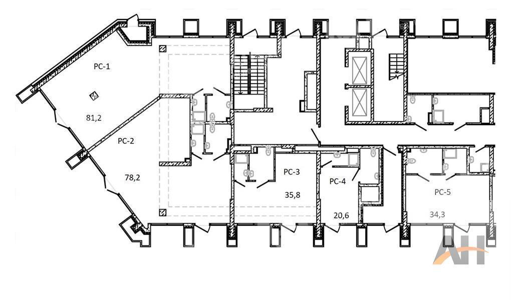
| Площадь: | 20.6 кв. м |
| Этаж: | 1 |
| Местоположение | |
| Округ: | ВАО |
| Метро: | Площадь Ильича, Римская, Москва-Товарная (МЦД) |
| Улица: | Золоторожский Вал ул |
| Стоимость и условия | |
| Цена: |
33 124 800 руб. Сообщить о снижении цены
|
| Характеристики | |
| Тип здания: | Жилые дома |
| Этажность здания: | 14 |
| Наличие лифта: | ✓ |
| Наличие паркинга: | ✓ |
| Срок сдачи: | 2028 г. (4 кв.) |
| Описание | |
|
Лот №945074 Предлагается к продаже коммерческое помещение площадью 20,60 кв. м. на первом этаже в строящемся комплексе STONE Rise. Объект расположен в корпусе С первой очереди строительства. Общее количество этажей в здании — четырнадцать. Адресная привязка: город Москва, улица Золоторожский Вал, владение 11, строение 32-34. Помещение обладает статусом свободного назначения, что открывает широкие возможности для его коммерческого использования. Оно может быть эффективно utilized под организацию медицинского центра, салона красоты, парикмахерской, офиса, ресторана, бара, банковского отделения, пункта бытовых услуг, торговой точки или магазина. Сдача объекта в эксплуатацию запланирована на четвертый квартал 2028 года.
Чтобы получить ПОДРОБНУЮ ПРЕЗЕНТАЦИЮ С ПЛАНИРОВКОЙ И ФОТОГРАФИЯМИ на этот объект, звоните. Высылаем в течение 15 минут по запросу! |
|
| Доп. услуги: | - возможна продажа в кредит |
| Контактная информация | |
| Лот №: | 945074 |
| Контактное лицо: | НОВОСТРОЙКИ |
| Телефон: | 8 (495) 822-78-71 доб.211 |


