Описание объекта лот №: 945071
| Возможное использование: | Свободное назначение Аптеки Банки Бытовые услуги Магазины Медцентры Офисы Салоны красоты Шоурумы Новостройки |
| Операция: | Продажа |
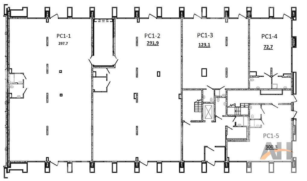
| Площадь: | 291.9 кв. м |
| Этаж: | 1 |
| Местоположение | |
| Округ: | ВАО |
| Метро: | Площадь Ильича, Римская, Москва-Товарная (МЦД) |
| Улица: | Золоторожский Вал ул |
| Стоимость и условия | |
| Цена: |
237 314 700 руб. Сообщить о снижении цены
|
| Характеристики | |
| Тип здания: | Жилые дома |
| Этажность здания: | 14 |
| Наличие лифта: | ✓ |
| Наличие паркинга: | ✓ |
| Срок сдачи: | 2028 г. (4 кв.) |
| Описание | |
|
Лот №945071 Предлагается к продаже коммерческое помещение общей площадью 291,90 кв. м., расположенное на первом этаже в комплексе STONE Rise. Объект находится в корпусе С первой очереди строительства. Общее количество этажей в здании — четырнадцать. Адрес расположения: город Москва, улица Золоторожский Вал, владение 11, строение 32-34. Помещение обладает статусом свободного назначения, что открывает широкие возможности для его использования. Оно идеально подойдет для размещения медицинского центра, салона красоты, парикмахерской, офиса, ресторана, бара, банка, предприятий бытового обслуживания, торговых точек или магазинов. Сдача объекта в эксплуатацию запланирована на четвертый квартал 2028 года. Это перспективная возможность приобрести современное пространство в строящемся комплексе для развития вашего бизнеса.
Чтобы получить ПОДРОБНУЮ ПРЕЗЕНТАЦИЮ С ПЛАНИРОВКОЙ И ФОТОГРАФИЯМИ на этот объект, звоните. Высылаем в течение 15 минут по запросу! |
|
| Доп. услуги: | - возможна продажа в кредит |
| Контактная информация | |
| Лот №: | 945071 |
| Контактное лицо: | НОВОСТРОЙКИ |
| Телефон: | 8 (495) 822-78-71 доб.211 |


