Описание объекта лот №: 937859
| Возможное использование: | Свободное назначение Бизнес | 
| Операция: | Продажа бизнеса | 
| Площадь: | 48.9 кв. м | 
| Этаж: | 1 | 
| Местоположение | |
| Город: | Красногорск, Химки | 
| Метро: | Строгино, Мякинино, Волоколамская | 
| Улица: | Волоколамское шоссе | 
| ИФНС | № 7731 | 
| Стоимость и условия | |
| Цена: | 
													39 000 000 руб. Сообщить о снижении цены  
													
												 | 
											
| Срок окупаемости: | 11 лет | 
| Обеспечительный платеж: | Без залога | 
| Характеристики | |
| Тип здания: | Жилые дома | 
| Этажность здания: | 24 | 
| Описание | |
| 
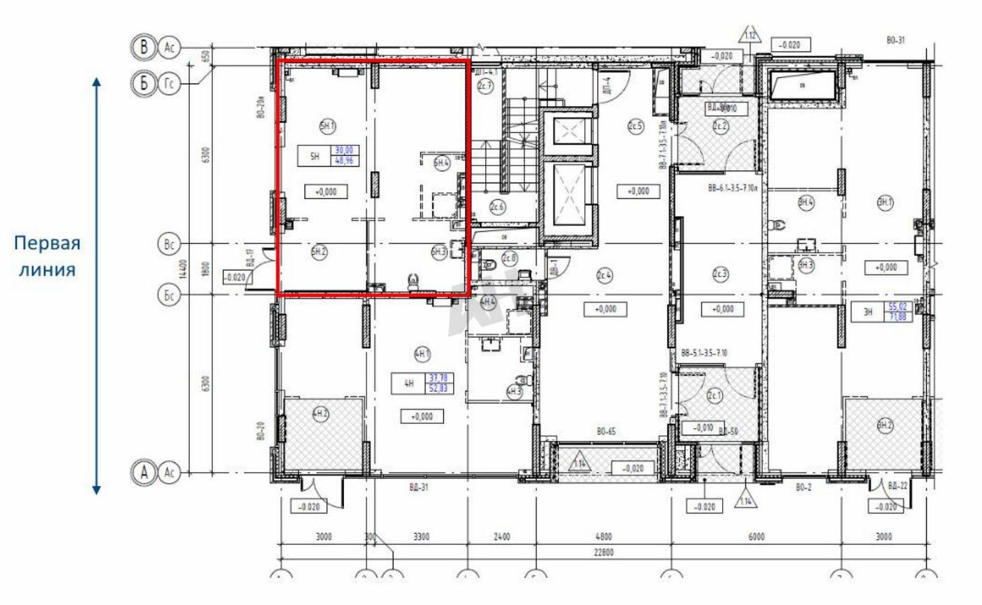
													Лот №937859  Продаётся готовый арендный бизнес в новом жилом комплексе «Строгино». Основные параметры: Площадь: 48,9 м² Этаж: 1-й, угловое расположение на въезде в ЖК Состояние: строится, ввод в эксплуатацию — зима 2026 г. ЖК: 2 542 квартиры Расположение: Престижное северо-западное направление 300 м от МКАД 20 минут пешком до метро «Строгино» и «Мякинино» 15 минут пешком до строящейся станции метро «Липовая Роща» Рядом школа и детский сад Напротив — пешеходный переход и остановки общественного транспорта Арендатор: Сетевая аптека «Горздрав» Заключён предварительный договор аренды Срок аренды: 7 лет Условия аренды: 1–8 мес.: 103 000 ₽/мес. 9–12 мес.: 206 000 ₽/мес. С 13 мес.: 294 000 ₽/мес. Коммунальные услуги оплачиваются арендатором Индексация — 5% ежегодно Окупаемость: 11 лет 
 Чтобы получить ПОДРОБНУЮ ПРЕЗЕНТАЦИЮ С ПЛАНИРОВКОЙ И ФОТОГРАФИЯМИ на этот объект, звоните. Высылаем в течение 15 минут по запросу!  | 
												|
| Доп. услуги: | - возможна продажа в кредит  | 
											
| Контактная информация | |
| Лот №: | 937859 | 
| Контактное лицо: | Апекс | 
| Телефон: | 8 (495) 822-78-71 доб.313 | 


