Описание объекта лот №: 927238
| Возможное использование: | Свободное назначение Кафе/рестораны Магазины Столовые Шоурумы |
| Операция: | Продажа |
| Площадь: | 608.5 кв. м |
| Этаж: | 1 |
| Местоположение | |
| Округ: | ЗАО |
| Метро: | Давыдково, Аминьевская, Рабочий поселок (МЦД) |
| От метро: | 15 мин. пешком |
| Улица: | Верейская ул |
| ИФНС | № 7731 |
| Стоимость и условия | |
| Цена: |
121 700 000 руб. Сообщить о снижении цены
|
| Форма налогообложения собственника: | НДС |
| Срок окупаемости: | 10 лет |
| Характеристики | |
| Тип здания: | Бизнес центры класса B |
| Отдельный вход: | ✓ |
| Этажность здания: | 7 |
| Наличие паркинга: | ✓ |
| Тип окон: | витринные |
| Описание | |
|
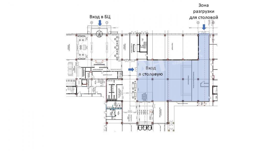
Лот №927238 Продается помещение площадью 608,5 кв.м. в бизнес центре Верейская плаза. Помещение находится на 1 этаже, проход к помещению свободный, вне зоны охраны. Потолки более 5.30 м, коммуникации подведены, без окон. Есть разгрузочно погрузочная зона. Специально рассчитана - вентиляция. Технологическая вытяжка. Выделенная мощность более 100 квт. Количество арендаторов в этом и соседних зданиях близкое к 10 000 сотрудников. Бизнес центры вокруг - заселены на 90%-100%. За БЦ Верейская Плаза – ведется активное строительство двух огромных ЖК (Set и Veer). Станция метро «Верейская», в радиусе 500 м от БЦ. Запуск станции к 2031 г. Продажа объекта с НДС. Идеально подойдет под общепит, столовую, фудкорт и т.д.
Чтобы получить ПОДРОБНУЮ ПРЕЗЕНТАЦИЮ С ПЛАНИРОВКОЙ И ФОТОГРАФИЯМИ на этот объект, звоните. Высылаем в течение 15 минут по запросу! |
|
| Доп. услуги: | - возможна продажа в кредит |
| Контактная информация | |
| Лот №: | 927238 |
| Контактное лицо: | Валентин Эдуардович |
| Телефон: | 8 (495) 822-78-71 доб.215 |


