Описание объекта лот №: 926768
| Возможное использование: | Свободное назначение Бытовые услуги Ломбарды Магазины Нотариусы/турфирмы Офисы Салоны красоты Фитнес Фотостудии Шоурумы |
| Операция: | Продажа |
| Площадь: | 149.7 кв. м |
| Этаж: | цоколь |
| Местоположение | |
| Округ: | ВАО |
| Метро: | Красносельская, Комсомольская, Сокольники |
| От метро: | 6 мин. пешком |
| Улица: | Большой Краснопрудный туп |
| ИФНС | № 7708 |
| Стоимость и условия | |
| Цена: |
37 000 000 руб. Сообщить о снижении цены
|
| Срок окупаемости: | 10 лет |
| Характеристики | |
| Тип здания: | Жилые дома |
| Отдельный вход: | ✓ |
| Этажность здания: | 5 |
| Круглосуточный доступ: | ✓ |
| Наличие паркинга: | ✓ |
| Тип окон: | обычные |
| Электрическая мощность, кВт: | 30 |
| Описание | |
|
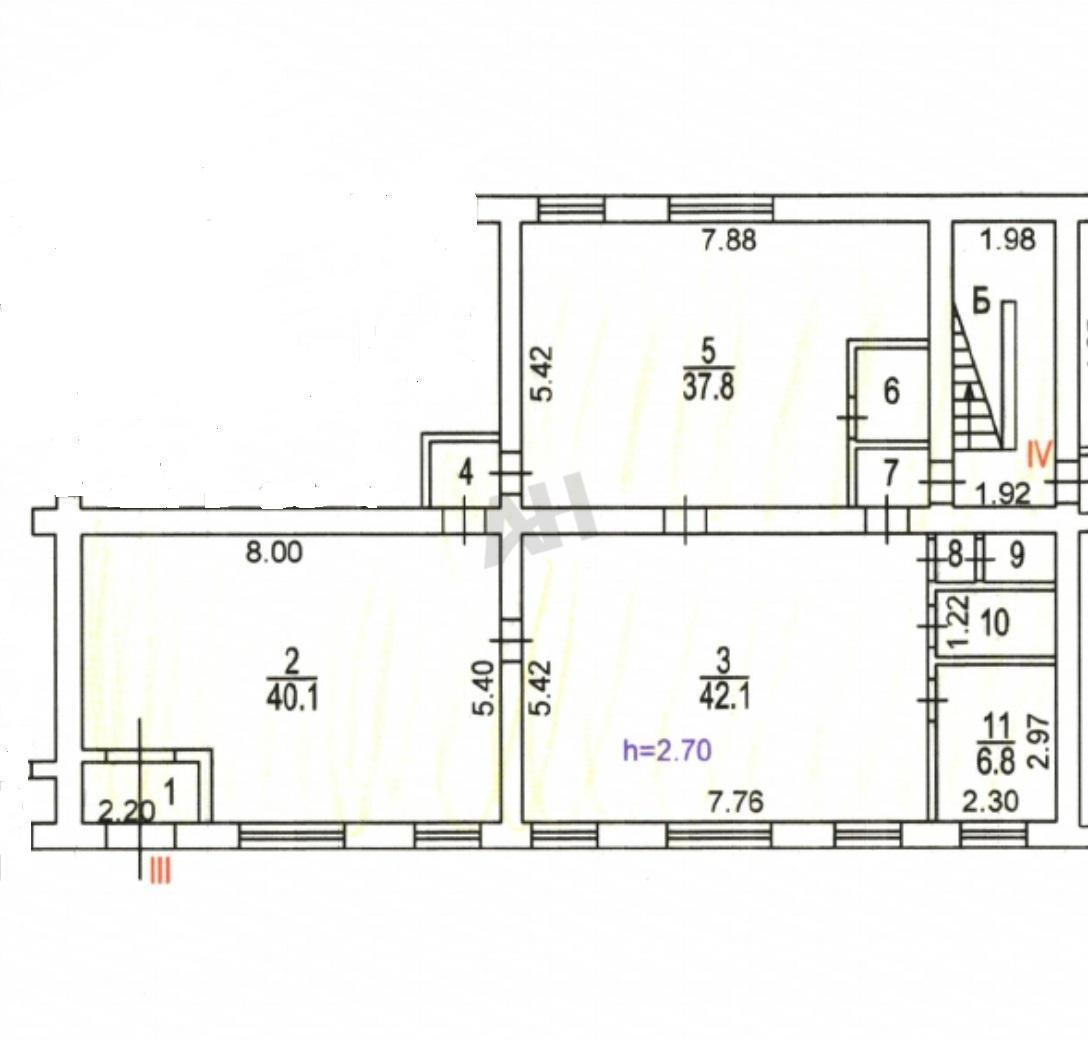
Лот №926768 Продается помещение свободного назначения общей площадью 149.7 м², расположенное в цокольном этаже жилого дома с физическим расположением на уровне первого этажа. Акция до Нового года! Цена снижена! Успейте купить! Объект находится в пяти минутах ходьбы от станции метро Красносельская. Помещение полностью свободно. Выполнен свежий ремонт в стиле лофт, установлены новые входная дверь и стеклопакеты. Ключевые характеристики включают отдельный вход с улицы, полноценные окна, свободную планировку из трех залов, две мокрые точки, высоту потолков 2.7 метра, выделенную электрическую мощность 30 кВт и центральные коммуникации. Управляющая компания – ГБУ Жилищник. Объект идеально подойдет для размещения пункта выдачи заказов, шоу-рума, салона красоты, оказания услуг, офиса продаж, магазина. В шаговой доступности расположены такие операторы рынка, как супермаркет "Магнолия", аптека "Горздрав" и пункты выдачи заказов. Локация характеризуется принадлежностью к центральному району города с развитой жилой и административной застройкой, а также сложившейся инфраструктурой. Обеспечена быстрая транспортная доступность и удобный выезд на Третье транспортное кольцо.
Чтобы получить ПОДРОБНУЮ ПРЕЗЕНТАЦИЮ С ПЛАНИРОВКОЙ И ФОТОГРАФИЯМИ на этот объект, звоните. Высылаем в течение 15 минут по запросу! |
|
| Доп. услуги: | - возможна продажа в кредит |
| Контактная информация | |
| Лот №: | 926768 |
| Контактное лицо: | Алексей Юрьевич |
| Телефон: | 8 (495) 822-78-71 доб.248 |


