Описание объекта лот №: 923891
| Возможное использование: | Свободное назначение Аптеки Банки Бытовые услуги Магазины Медцентры Офисы Салоны красоты Шоурумы Новостройки |
| Операция: | Продажа |
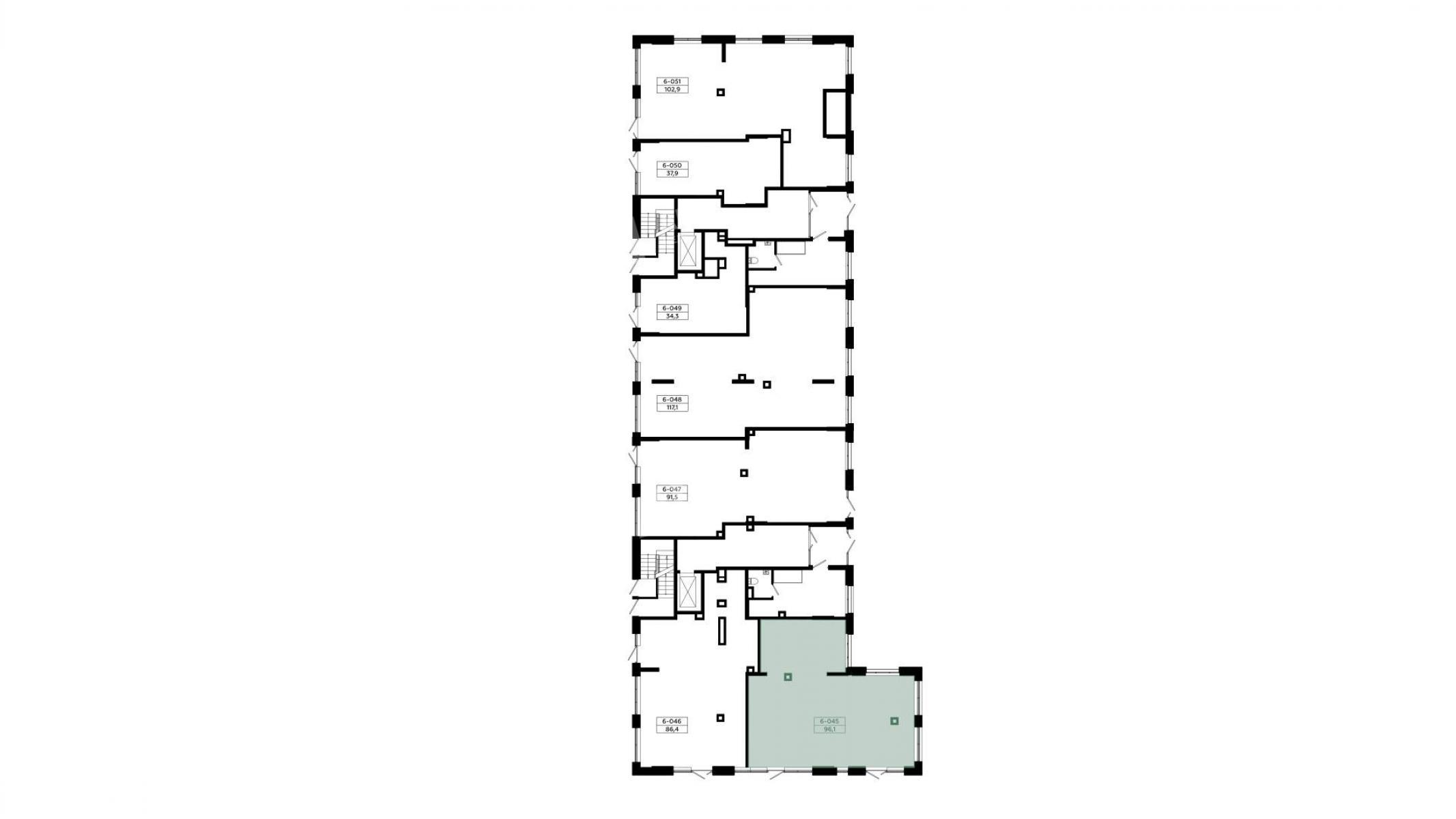
| Площадь: | 96.1 кв. м |
| Этаж: | 1 |
| Местоположение | |
| Округ: | |
| Метро: | |
| Улица: | шоссе |
| Стоимость и условия | |
| Цена: |
37 351 187 руб. Сообщить о снижении цены
|
| Срок окупаемости: | 9 лет |
| Делимся комиссией: | ✓ |
| Характеристики | |
| Тип здания: | Жилые дома |
| Этажность здания: | 9 |
| Срок сдачи: | 2025 г. (4 кв.) |
| Описание | |
|
Лот №923891 Выплачиваем вознаграждение! Представляется коммерческое помещение площадью 96,1 м² со свободным назначением. Высота потолков составляет 4,66 метра, разрешенная мощность — 28,83 кВт. Помещение оборудовано системой вентиляции с каналами сечением 100 мм, 100x300 мм и 350x300 мм, имеет два входа и расположено на одном этаже. Отделка и витринное остекление отсутствуют. Прогнозируемая проходимость в зоне составляет от 81 до 113 человек в час. Для приобретения доступны специальные ипотечные условия. Действует предложение с возвратом ипотеки 1,01% на коммерческие помещения с первоначальным взносом от 30%. Также доступна стандартная ипотека на коммерческие помещения от 4,5% годовых. Арендаторам предоставляется возможность воспользоваться интерактивным сервисом для подбора помещений, включая варианты с акцептом франшизы. Срок сдачи объекта запланирован на четвертый квартал 2025 года.
Чтобы получить ПОДРОБНУЮ ПРЕЗЕНТАЦИЮ С ПЛАНИРОВКОЙ И ФОТОГРАФИЯМИ на этот объект, звоните. Высылаем в течение 15 минут по запросу!
Уважаемые коллеги, мы работаем по этому объекту с посредниками и делимся комиссией в соответствии с нашей партнерской программой! |
|
| Доп. услуги: | - возможна продажа в кредит |
| Контактная информация | |
| Лот №: | 923891 |
| Контактное лицо: | НОВОСТРОЙКИ |
| Телефон: | 8 (495) 822-78-71 доб.211 |


