Описание объекта лот №: 908419
| Возможное использование: | Офисы | ||||||||||||
| Операция: | Аренда | ||||||||||||
| Тип аренды: | Прямая аренда | ||||||||||||
| Площадь: | 220 - 700 кв. м | ||||||||||||
| Этаж: | 6 | ||||||||||||
| Местоположение | |||||||||||||
| Округ: | САО | ||||||||||||
| Метро: | Дмитровская, Бутырская, Савеловская | ||||||||||||
| От метро: | 5 мин. пешком | ||||||||||||
| Улица: | Новодмитровская ул | ||||||||||||
| ИФНС | № 7715 | ||||||||||||
| Стоимость и условия | |||||||||||||
| Цена: | от 696 667 до 2 216 667 руб. в месяц 38 000 руб. за 1м2 в год Сообщить о снижении цены
|
||||||||||||
| Форма налогообложения собственника: | НДС | ||||||||||||
| Обеспечительный платеж: | 2 месяца | ||||||||||||
| Эксплуатационные расходы включены: | ✓ | ||||||||||||
| Характеристики | |||||||||||||
| Тип здания: | Бизнес центры класса B | ||||||||||||
| Этажность здания: | 9 | ||||||||||||
| Наличие кондиционирования: | ✓ | ||||||||||||
| Наличие лифта: | ✓ | ||||||||||||
| Наличие пропускной системы: | ✓ | ||||||||||||
| Наличие общепита в здании: | ✓ | ||||||||||||
| Тип окон: | обычные | ||||||||||||
| Описание | |||||||||||||
|
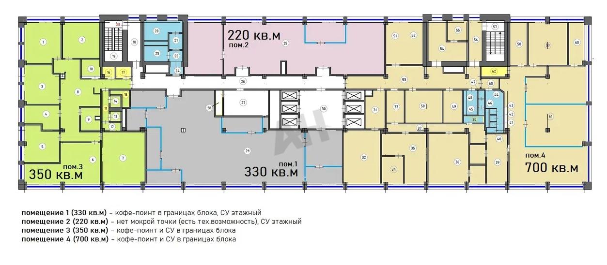
Лот №908419 Сдаются офисные блоки , Бизнес Центр Б+ класса "ДМИТРОВСКИЙ". 6 -ой этаж. 6 Лифтов. Современные инженерные коммуникации. Подземный 2-уровневый паркинг, наземный 60 м/м подземный 90 м/м 25 000 р./месяц за 1 м/м. Корпоративная Столовая для сотрудников, кафе и магазины, банкоматы. Метро Дмитровская в шаговой доступности. Актуальные площади и цены (м2):
Стоимость аренды: 38 000 руб/м2/год. В цену включено: эксплуатационные расходы. В цену не включено: затраты на электричество, коммунальные расходы, уборка.
Чтобы получить ПОДРОБНУЮ ПРЕЗЕНТАЦИЮ С ПЛАНИРОВКОЙ И ФОТОГРАФИЯМИ на этот объект, звоните. Высылаем в течение 15 минут по запросу! |
|||||||||||||
| Контактная информация | |||||||||||||
| Лот №: | 908419 | ||||||||||||
| Контактное лицо: | Дмитрий Викторович | ||||||||||||
| Телефон: | 8 (495) 822-78-71 доб.220 | ||||||||||||


