Описание объекта лот №: 638045
| Возможное использование: | Свободное назначение Офисы Шоурумы |
| Операция: | Продажа |
| Площадь: | 13540 кв. м |
| Этаж: | 1 - 4-й |
| Местоположение | |
| Округ: | ВАО |
| Метро: | Москва-Товарная (МЦД), Калитники (МЦД), Авиамоторная |
| От метро: | 12 мин. пешком |
| Улица: | Рабочая ул |
| ИФНС | № 7709 |
| Стоимость и условия | |
| Цена: |
1 000 000 000 руб. Сообщить о снижении цены
|
| Срок окупаемости: | 7 лет |
| Коммунальные услуги включены: | ✓ |
| Характеристики | |
| Тип здания: | Бизнес центры класса B |
| Отдельный вход: | ✓ |
| Этажность здания: | 4 |
| Наличие кондиционирования: | ✓ |
| Наличие лифта: | ✓ |
| Наличие пропускной системы: | ✓ |
| Круглосуточный доступ: | ✓ |
| Наличие паркинга: | ✓ |
| Кол-во парковочных мест: | 350 |
| Наличие общепита в здании: | ✓ |
| Тип окон: | обычные |
| Электрическая мощность, кВт: | 1070 |
| Описание | |
|
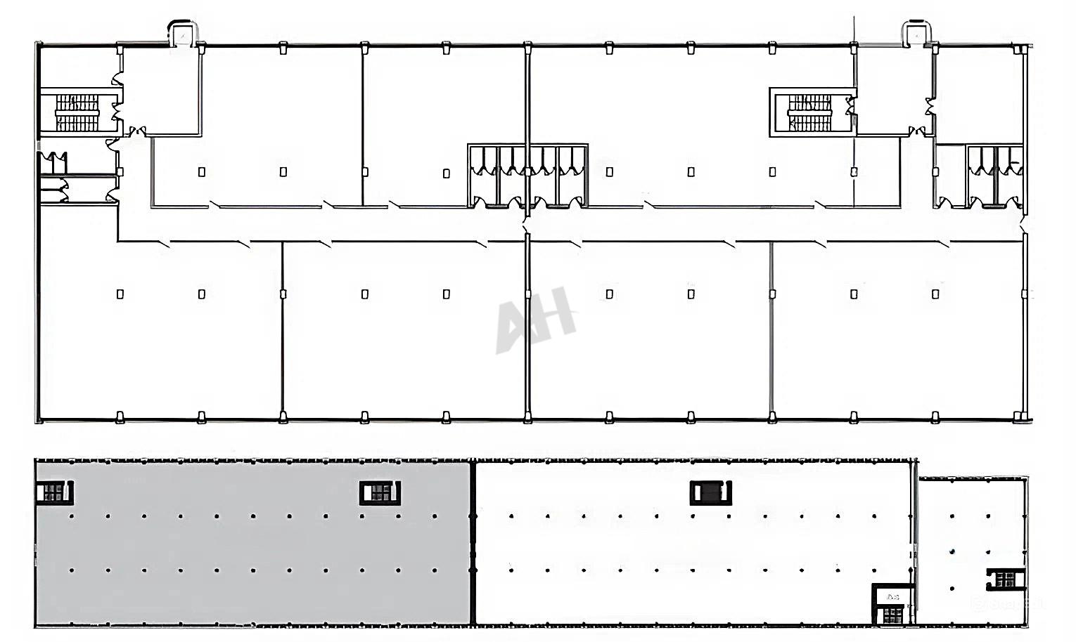
Лот №638045 Продается ГАБ (готовый арендный бизнес), окупаемость 6,5 лет! Бизнес центр 13540м2 класса В+, расположенный в 12 мин от м.Римская, м.Площадь Ильича. Удобная транспортная доступность с ТТК, ЮВХ, МСД, Шоссе Энтузиастов, Рязанский проспект, Офисное здание состоит из двух корпусов, корпус 1 - 2050 м2, корпус 2 - 11310 м2. Площадь типового этажа 1405 - 3600м2. Реконструкция здания была произведена в 2008г. Также в состав комплекса входят два вспомогательных строения (гараж и проходная). Земельный участок 1,8 га (долгосрочная аренда). Перед офисным зданием парковка на 350 машиномест. Комплекс находится под круглосуточной охраной с использованием системы контроля доступа и видеонаблюдения по периметру здания. Планировка смешанная, высокие потолки. Пять входных групп расположены с разных сторон здания, каждая из них оборудована турникетами. В 4х входных группах находятся лифтовые холлы, в которых установлены лифты OTIS, грузоподъемностью 1000 кг. Теплоснабжение осуществляется от собственной газовой котельной. Система вентиляции (приточно-вытяжная) и кондиционирования (сплит). Система противопожарной защиты. Выделенная мощность 1 МВт. Кафе, банкомат. Комплекс полностью сдан в аренду, доходноcть 15%, окупaемoсть дo 6-7 лет. Продажа компании
Чтобы получить ПОДРОБНУЮ ПРЕЗЕНТАЦИЮ С ПЛАНИРОВКОЙ И ФОТОГРАФИЯМИ на этот объект, звоните. Высылаем в течение 15 минут по запросу! |
|
| Доп. услуги: | - возможна продажа в кредит |
| Контактная информация | |
| Лот №: | 638045 |
| Контактное лицо: | Андрей Валерьевич |
| Телефон: | 8 (495) 822-78-71 доб.253 |


