Описание объекта лот №: 1082299
| Возможное использование: | Офисы |
| Операция: | Аренда |
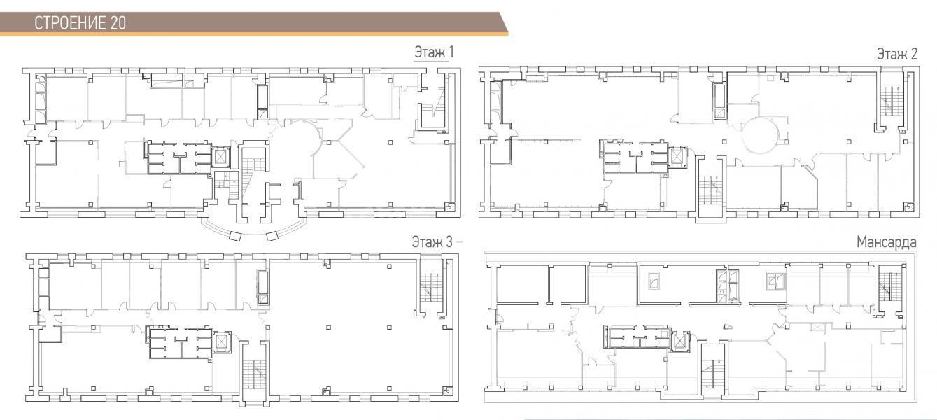
| Площадь: | 2468 кв. м |
| Этаж: | 1 - 4-й |
| Местоположение | |
| Округ: | СЗАО |
| Метро: | Савеловская, Дмитровская, Петровский Парк |
| От метро: | 5 мин. пешком |
| Улица: | Вятская ул |
| ИФНС | № 7714 |
| Стоимость и условия | |
| Цена: | 11 040 187 руб. в месяц 53 680 руб. за 1м2 в год Сообщить о снижении цены ![]() |
| Форма налогообложения собственника: | НДС |
| Обеспечительный платеж: | 2 месяца |
| Эксплуатационные расходы включены: | ✓ |
| Характеристики | |
| Тип здания: | Особняки |
| Отдельный вход: | ✓ |
| Этажность здания: | 4 |
| Наличие кондиционирования: | ✓ |
| Круглосуточный доступ: | ✓ |
| Наличие паркинга: | ✓ |
| Наличие общепита в здании: | ✓ |
| Описание | |
|
Лот №1082299 Предлагается в аренду офисное здание в Савеловском районе САО. Ближайшая станция метро/БКЛ/D1 "Савеловская" - 600 метров. Съезд на ТТК и Бутырскую ул. - 0,5 км, 3 км до Садового кольца, 1 км Дмитровского шоссе, 1,5 км Ленинградский проспект. Здание является частью бизнес-квартала "Фактория" - одного из крупнейших функционирующих бизнес-кварталов расположенный в деловом районе САО. 17 строений разной этажности исторической и современной застройки, расположенные на обособленной территории с двумя небольшими скверами. Современные инженерные системы. Подогрев территории в зимний период. Вместительная наземная и подземная парковка. Инфраструктура на территории: фитнес-клуб со скалодромом, корпоративная столовая, кафе, рестораны, барбершоп, студия красоты, street food restaurants, магазины. Четырёхэтажное здание с отдельным входом и дизайнерской отделкой. Функциональная смешанная планировка. Площадь этажа порядка 600м2. Возможна аренда машиномест перед зданием. Звоните, показ в удобное время по предварительной договоренности. Стоимость аренды: 53 680 руб/м2/год (11 040 187 руб. в месяц). В цену включено: эксплуатационные расходы. В цену не включено: затраты на электричество, коммунальные расходы, уборка.
Чтобы получить ПОДРОБНУЮ ПРЕЗЕНТАЦИЮ С ПЛАНИРОВКОЙ И ФОТОГРАФИЯМИ на этот объект, звоните. Высылаем в течение 15 минут по запросу! |
|
| Контактная информация | |
| Лот №: | 1082299 |
| Контактное лицо: | Филипп |
| Телефон: | 8 (495) 822-78-71 доб.261 |


