Описание объекта лот №: 1063864
| Возможное использование: | Офисы |
| Операция: | Аренда |
| Тип аренды: | Прямая аренда |
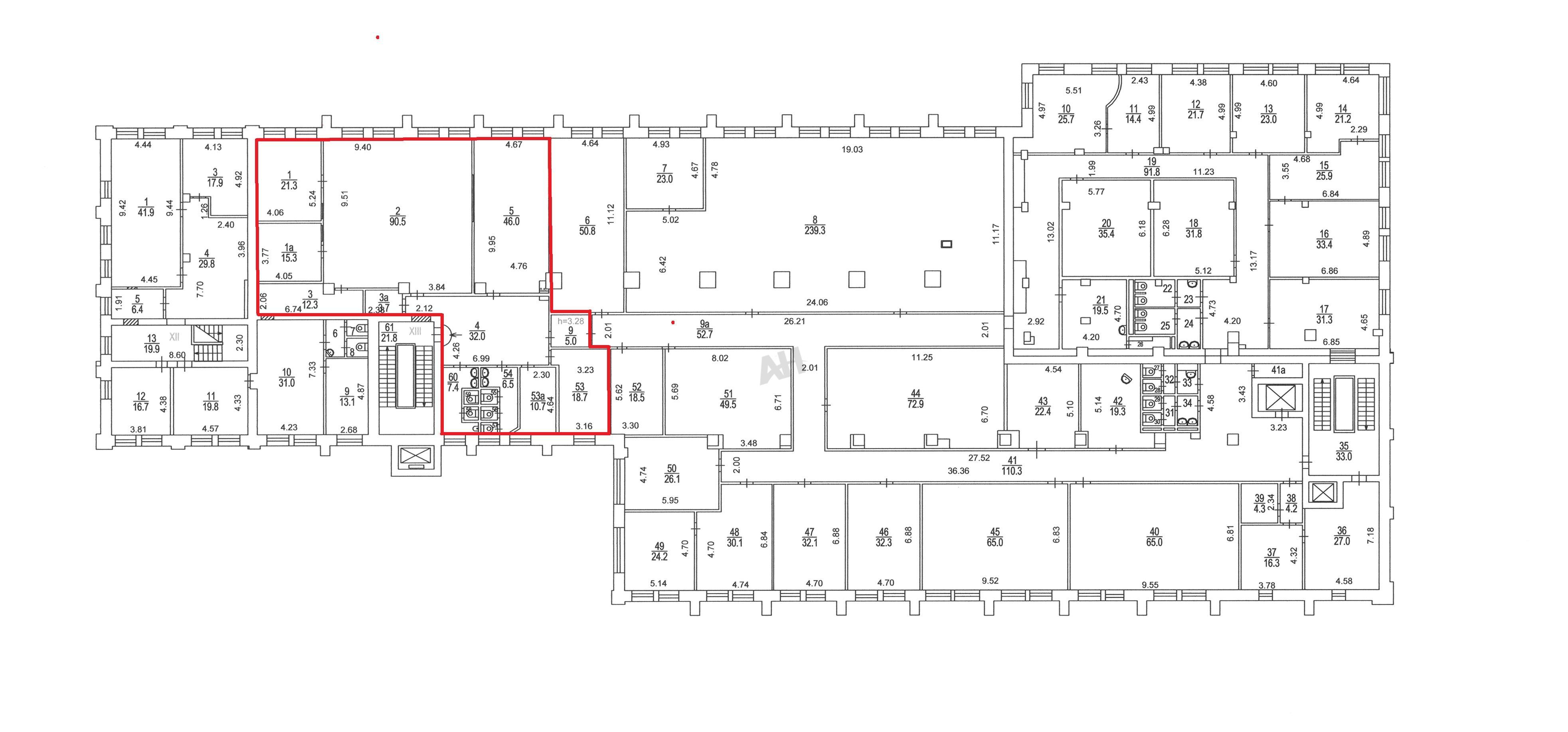
| Площадь: | 274.8 кв. м |
| Этаж: | 2 |
| Местоположение | |
| Округ: | СЗАО |
| Метро: | Гражданская (МЦД), Дмитровская, Петровский Парк |
| От метро: | 8 мин. пешком |
| Улица: | 2-я Хуторская ул |
| ИФНС | № 7713 |
| Стоимость и условия | |
| Цена: | 618 300 руб. в месяц 27 000 руб. за 1м2 в год Сообщить о снижении цены ![]() |
| Форма налогообложения собственника: | НДС |
| Обеспечительный платеж: | 1 месяц |
| Эксплуатационные расходы включены: | ✓ |
| Характеристики | |
| Тип здания: | Бизнес центры класса B |
| Этажность здания: | 5 |
| Наличие кондиционирования: | ✓ |
| Наличие лифта: | ✓ |
| Возможность подъезда фуры: | ✓ |
| Наличие пандуса: | ✓ |
| Наличие пропускной системы: | ✓ |
| Круглосуточный доступ: | ✓ |
| Наличие паркинга: | ✓ |
| Кол-во парковочных мест: | 150 |
| Наличие общепита в здании: | ✓ |
| Тип окон: | витринные |
| Кол-во телефонных линий: | 2 |
| Описание | |
|
Лот №1063864 Предлагается к рассмотрению офисное помещение на втором этаже. Общая площадь объекта составляет 274.8 м². Локация отличается транспортной доступностью, расстояние до станции метро «Гражданская» составляет примерно восемь минут пешком. Инфраструктура здания включает современные инженерные системы. Обеспечена круглосуточная система контроля и управления доступом. Климатический комфорт поддерживается центральной системой кондиционирования и приточно-вытяжной вентиляцией. Вопросы безопасности решены на необходимом уровне. В помещении функционирует система пожарной сигнализации для своевременного оповещения. Стоимость аренды: 27 000 руб/м2/год (618 300 руб. в месяц). В цену включено: эксплуатационные расходы. В цену не включено: затраты на электричество.
Чтобы получить ПОДРОБНУЮ ПРЕЗЕНТАЦИЮ С ПЛАНИРОВКОЙ И ФОТОГРАФИЯМИ на этот объект, звоните. Высылаем в течение 15 минут по запросу! |
|
| Youtube видео | |
| Контактная информация | |
| Лот №: | 1063864 |
| Контактное лицо: | Максим Анатольевич |
| Телефон: | 8 (495) 822-78-71 доб.243 |


