Описание объекта лот №: 1061983
| Возможное использование: | Свободное назначение Банки Гостиницы/отели Медцентры Офисы |
| Операция: | Продажа |
| Площадь: | 1638 кв. м |
| Этаж: | 1 - 3-й |
| Местоположение | |
| Округ: | ЗАО |
| Метро: | Смоленская ФЛ, Смоленская АПЛ, Киевская |
| От метро: | 10 мин. пешком |
| Улица: | Смоленская-Сенная пл |
| ИФНС | № 7704 |
| Стоимость и условия | |
| Цена: |
1 200 000 000 руб. Сообщить о снижении цены
|
| Срок окупаемости: | 12 лет |
| Обеспечительный платеж: | 2 месяца |
| Эксплуатационные расходы включены: | ✓ |
| Характеристики | |
| Тип здания: | Особняки |
| Отдельный вход: | ✓ |
| Этажность здания: | 3 |
| Наличие мебели: | ✓ |
| Наличие кондиционирования: | ✓ |
| Наличие пропускной системы: | ✓ |
| Круглосуточный доступ: | ✓ |
| Наличие паркинга: | ✓ |
| Кол-во парковочных мест: | 8 |
| Тип окон: | обычные |
| Электрическая мощность, кВт: | 152 |
| Описание | |
|
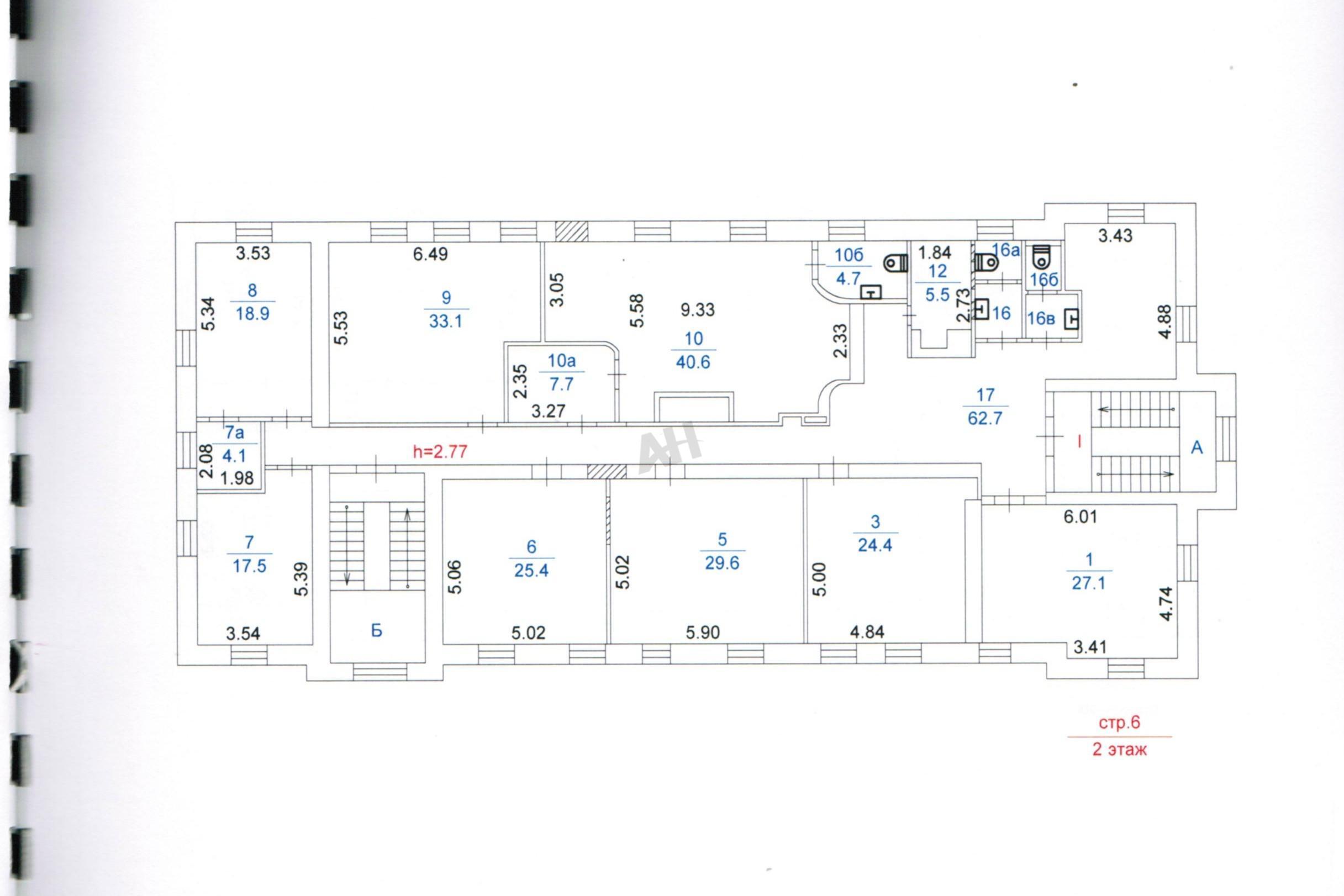
Лот №1061983 Предлагается в продажу Особняк целиком площадью 1638 м2 в 10 мин от м.Арбатская, м.Смоленская. Оптимальное сочетание атмосферы тихого, уютного московского дворика и центра деловой активности столицы. Отдельно стоящее здание представительского класса, год постройки 1997 г. Функциональное назначение: нежилое. Договор аренды земли: на 49 лет (с 1996 г.) Здание состоит из подвала, цоколя, первого и второго этажей, а также мансарды. Материал стен: кирпич, перекрытия: железобетон. Электрическая мощность 152 кВт. Кабинетная планировка, с/у на этажах, бильярдная. Охрана, парковка во внутреннем дворе на 6-8 машиномест. Здание оборудовано современными системами вентиляции, центрального кондиционирования, пожарной безопасности, системами видеонаблюдения, контроля доступа. Интернет, телефония, профессионально оборудованная серверная, Удобное расположение и высокая транспортная доступность, выразительный фасад, качественный ремонт внутренних помещений. Красивый и уютный внутренний двор, развитая бизнес-инфраструктура района.
Чтобы получить ПОДРОБНУЮ ПРЕЗЕНТАЦИЮ С ПЛАНИРОВКОЙ И ФОТОГРАФИЯМИ на этот объект, звоните. Высылаем в течение 15 минут по запросу! |
|
| Доп. услуги: | - возможна продажа в кредит |
| Контактная информация | |
| Лот №: | 1061983 |
| Контактное лицо: | Андрей Валерьевич |
| Телефон: | 8 (495) 822-78-71 доб.253 |


