Описание объекта лот №: 1053111
| Возможное использование: | Свободное назначение Медцентры Офисы Шоурумы |
| Операция: | Аренда |
| Тип аренды: | Прямая аренда |
| Площадь: | 289.7 кв. м |
| Этаж: | 2 |
| Местоположение | |
| Округ: | ЦАО |
| Метро: | Чкаловская, Чистые пруды, Китай-город |
| Улица: | Подсосенский пер |
| ИФНС | № 7709 |
| Стоимость и условия | |
| Цена: | 1 400 000 руб. в месяц 57 991 руб. за 1м2 в год Сообщить о снижении цены ![]() |
| Обеспечительный платеж: | 1 месяц |
| Эксплуатационные расходы включены: | ✓ |
| Характеристики | |
| Тип здания: | Административные здания |
| Отдельный вход: | ✓ |
| Этажность здания: | 4 |
| Наличие мебели: | ✓ |
| Наличие кондиционирования: | ✓ |
| Круглосуточный доступ: | ✓ |
| Тип окон: | обычные |
| Описание | |
|
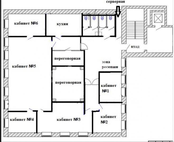
Лот №1053111 Предлагается в аренду помещение 289,7м2 на 2-ой этаже 4-х этажного здания. Район ЦАО, Басманный район, 5 мин от метро Курская и Чкаловская. Помещение оборудовано всеми необходимыми инженерно-техническими системами. Система кондиционирования. Качественный ремонт: Интернет. Достаточная электрическая мощность. Локальная сеть разведена по периметру помещения. Стихийная парковка. Юридический адрес, ИФНС №9. Возможное использование – офис, медицина, услуги, обучение, иное Эксплуатационные услуги – включены в МАП Дополнительно оплачиваются: коммунальные платежи, услуги связи, охраны, паркинг, клининг Стоимость аренды: 57 991 руб/м2/год (1 400 000 руб. в месяц). В цену включено: эксплуатационные расходы.
Чтобы получить ПОДРОБНУЮ ПРЕЗЕНТАЦИЮ С ПЛАНИРОВКОЙ И ФОТОГРАФИЯМИ на этот объект, звоните. Высылаем в течение 15 минут по запросу! |
|
| Контактная информация | |
| Лот №: | 1053111 |
| Контактное лицо: | Лидия Владимировна |
| Телефон: | 8 (495) 822-78-71 доб.240 |


