Описание объекта лот №: 1052883
| Возможное использование: | Офисы |
| Операция: | Аренда |
| Площадь: | 5998 кв. м |
| Этаж: | 2 - 4-й |
| Местоположение | |
| Округ: | ЮВАО |
| Метро: | Новохохловская (МЦК), Нижегородская (МЦК), Калитники (МЦД) |
| От метро: | 3 мин. пешком |
| Улица: | Новохохловская ул |
| ИФНС | № 7722 |
| Стоимость и условия | |
| Цена: | 15 158 945 руб. в месяц + НДС 30 328 руб. за 1м2 в год + НДС Сообщить о снижении цены ![]() |
| Форма налогообложения собственника: | НДС |
| Обеспечительный платеж: | 2 месяца |
| Эксплуатационные расходы включены: | ✓ |
| Характеристики | |
| Этажность здания: | 9 |
| Наличие кондиционирования: | ✓ |
| Наличие лифта: | ✓ |
| Наличие пропускной системы: | ✓ |
| Круглосуточный доступ: | ✓ |
| Наличие паркинга: | ✓ |
| Наличие общепита в здании: | ✓ |
| Описание | |
|
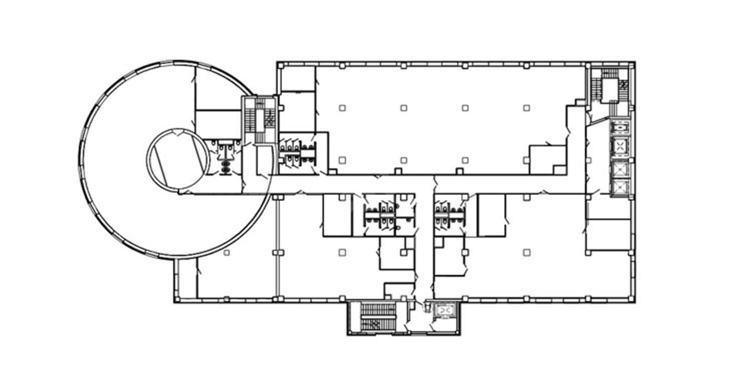
Лот №1052883 Предлагается в аренду целиком второй, третий и четвертый этажи в новом здании на территории бизнес-центра "Ринг Парк". 3 минуты пешком от МЦК. Помещения имеют смешанную планировку и выполнены с новым дизайнерским ремонтом в современном стиле с элементами лофт. Высота потолков от перекрытия до перекрытия составляет 4,5 метра. Общая площадь каждого этажа, предлагаемая в аренду, составляет 1996 кв. м. Планировка может быть открытой или смешанной. На объекте присутствует выделенная электроэнергия мощностью до 80 Вт/кв. м. Инфраструктура здания включает современное лифтовое оборудование, систему автономного и центрального отопления, а также центральную систему приточно-вытяжной вентиляции с подогревом в зимний период. Установлена центральная система кондиционирования воздуха, работоспособная при температуре окружающего воздуха до минус 15 градусов. Обеспечена комплексная безопасность: система пожарной сигнализации с возможностью подключения охранной сигнализации и контроль доступа. Для арендаторов доступны охраняемые наземная и крытая многоуровневая парковки. Здание оснащено оптико-волоконными линиями связи. Управление осуществляется профессиональной управляющей компанией. Ввод в эксплуатацию III квартал 2026 года. Стоимость аренды: 30 328 руб/м2/год (15 158 946 руб. в месяц), НДС оплачивается дополнительно. В цену включено: эксплуатационные расходы. В цену не включено: затраты на электричество, коммунальные расходы, уборка.
Чтобы получить ПОДРОБНУЮ ПРЕЗЕНТАЦИЮ С ПЛАНИРОВКОЙ И ФОТОГРАФИЯМИ на этот объект, звоните. Высылаем в течение 15 минут по запросу! |
|
| Контактная информация | |
| Лот №: | 1052883 |
| Контактное лицо: | Михаил Вячеславович |
| Телефон: | 8 (495) 822-78-71 доб.216 |


