Описание объекта лот №: 1052103
| Возможное использование: | Свободное назначение Кафе/рестораны Магазины Столовые Шоурумы |
| Операция: | Аренда |
| Тип аренды: | Прямая аренда |
| Площадь: | 608.5 кв. м |
| Этаж: | 1 |
| Местоположение | |
| Округ: | ЗАО |
| Метро: | Давыдково, Аминьевская, Рабочий поселок (МЦД) |
| От метро: | 15 мин. пешком |
| Улица: | Верейская ул |
| ИФНС | № 7731 |
| Стоимость и условия | |
| Цена: | 1 237 283 руб. в месяц 24 400 руб. за 1м2 в год Сообщить о снижении цены ![]() |
| Форма налогообложения собственника: | НДС |
| Обеспечительный платеж: | 1 месяц |
| Характеристики | |
| Тип здания: | Бизнес центры класса B |
| Отдельный вход: | ✓ |
| Этажность здания: | 7 |
| Тип окон: | витринные |
| Описание | |
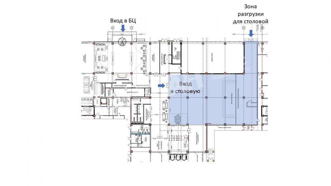
|
Лот №1052103 Предлагается помещение площадью 608,5 кв.м. под столовую, общепит, ресторан, магазин в бизнес центре Верейская плаза. Помещение находится на 1 этаже, проход к помещению свободный, вне зоны охраны. Потолки более 5.30 м, коммуникации подведены, без окон. Есть разгрузочно погрузочная зона. Специально рассчитана - вентиляция. Технологическая вытяжка. Выделенная мощность более 100 квт. Количество арендаторов в этом и соседних зданиях близкое к 10 000 сотрудников. Бизнес центры вокруг - заселены на 90%-100%. За БЦ Верейская Плаза – ведется активное строительство двух огромных ЖК (Set и Veer). Станция метро «Верейская», в радиусе 500 м от БЦ. Запуск станции к 2031 г. Идеально подойдет под общепит, столовую, фудкорт и т.д. Стоимость аренды: 24 400 руб/м2/год (1 237 284 руб. в месяц). В цену не включено: затраты на электричество, коммунальные расходы, эксплуатационные расходы.
Чтобы получить ПОДРОБНУЮ ПРЕЗЕНТАЦИЮ С ПЛАНИРОВКОЙ И ФОТОГРАФИЯМИ на этот объект, звоните. Высылаем в течение 15 минут по запросу! |
|
| Контактная информация | |
| Лот №: | 1052103 |
| Контактное лицо: | Валентин |
| Телефон: | 8 (495) 822-78-71 доб.215 |


