Описание объекта лот №: 1039322
| Возможное использование: | Свободное назначение Аптеки Банки Бытовые услуги Магазины Медцентры Офисы Салоны красоты Шоурумы Новостройки |
| Операция: | Продажа |
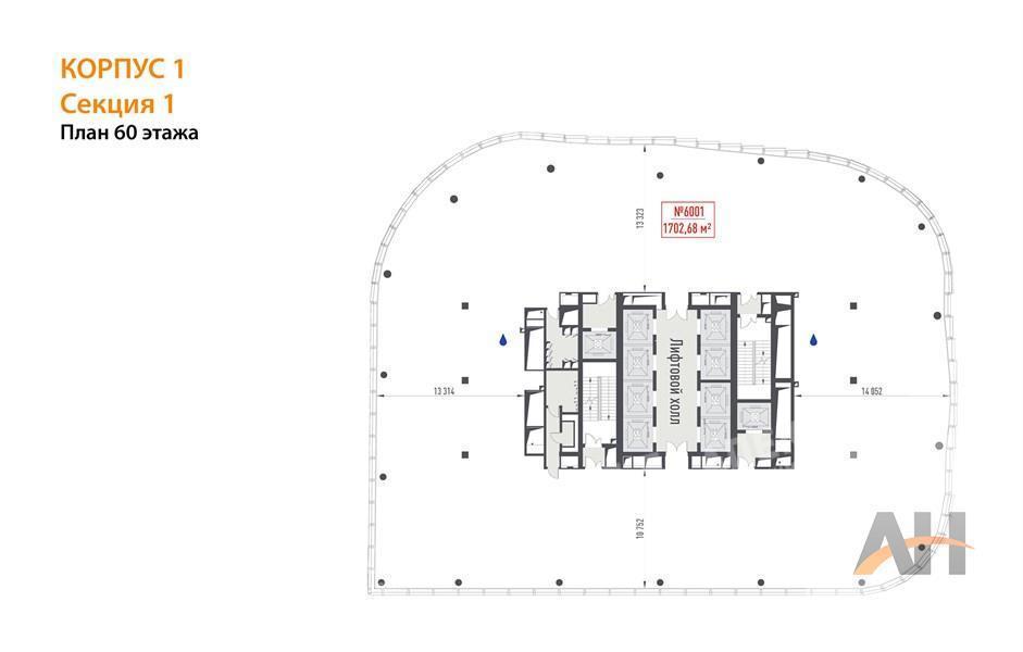
| Площадь: | 1702.7 кв. м |
| Этаж: | 60 |
| Местоположение | |
| Округ: | ЦАО |
| Метро: | Тестовская (МЦД), Шелепиха (МЦК), Международная |
| Улица: | Шелепихинский туп |
| ИФНС | № 7703 |
| Стоимость и условия | |
| Цена: |
1 762 273 800 руб. Сообщить о снижении цены
|
| Характеристики | |
| Тип здания: | Жилые дома |
| Этажность здания: | 64 |
| Наличие лифта: | ✓ |
| Наличие паркинга: | ✓ |
| Срок сдачи: | 2029 г. (4 кв.) |
| Описание | |
|
Лот №1039322 Продажа коммерческого помещения в новостройке: 1702,68 кв. м., 60 этаж в комплексе Top tower, 1 очередь, корп.1, сдача: 4кв. , этажей: 64, адрес Шелепихинский туп., д. 17/1, Застройщик: MR OFFICE. Помещение свободного назначения под любой вид деятельности (медцентр, салон красоты, парикмахерская, офис, ресторан, бар, банк, бытовые услуги, торговое помещение, магазин и. Срок сдачи: 4 кв
Чтобы получить ПОДРОБНУЮ ПРЕЗЕНТАЦИЮ С ПЛАНИРОВКОЙ И ФОТОГРАФИЯМИ на этот объект, звоните. Высылаем в течение 15 минут по запросу! |
|
| Доп. услуги: | - возможна продажа в кредит |
| Контактная информация | |
| Лот №: | 1039322 |
| Контактное лицо: | НОВОСТРОЙКИ |
| Телефон: | 8 (495) 822-78-71 доб.211 |


