Описание объекта лот №: 1026273
| Возможное использование: | Кафе |
| Операция: | Аренда |
| Тип аренды: | Прямая аренда |
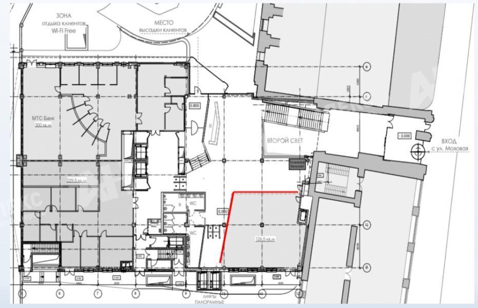
| Площадь: | 126 кв. м |
| Этаж: | 1 |
| Местоположение | |
| Округ: | ЦАО |
| Метро: | Библиотека имени Ленина, Арбатская ФЛ, Охотный ряд |
| От метро: | 2 мин. пешком |
| Улица: | Воздвиженка ул |
| ИФНС | № 7704 |
| Стоимость и условия | |
| Цена: | 636 237 руб. в месяц + НДС 60 594 руб. за 1м2 в год + НДС Сообщить о снижении цены ![]() |
| Форма налогообложения собственника: | НДС |
| Обеспечительный платеж: | 2 месяца |
| Эксплуатационные расходы включены: | ✓ |
| Характеристики | |
| Тип здания: | Бизнес центры класса А |
| Этажность здания: | 8 |
| Наличие кондиционирования: | ✓ |
| Наличие лифта: | ✓ |
| Наличие пропускной системы: | ✓ |
| Круглосуточный доступ: | ✓ |
| Наличие общепита в здании: | ✓ |
| Описание | |
|
Лот №1026273 Предлагается в аренду кофейня на 1 этаже площадью 126 кв. м, расположенная в центральном лобби бизнес-центра «Моховая». Объект находится в Центральном административном округе, в районе Арбат, напротив Кремля. Ближайшие станции метро: «Библиотека имени Ленина», «Арбатская» и «Боровицкая». Кофейня готова к немедленному заезду. В здании организованы приточно-вытяжная вентиляция и центральная система кондиционирования. Из окон открываются красивые виды, а в бизнес-центре представлены презентабельные общественные зоны и зона отдыха. В здании развита инфраструктура для комфортной работы, включающая ресторан, кафе, паб, салон красоты и фитнес-центр. Дополнительно доступна возможность аренды машиномест на подземном паркинге. Стоимость аренды: 60 594 руб/м2/год (636 237 руб. в месяц), НДС оплачивается дополнительно. В цену включено: эксплуатационные расходы. В цену не включено: затраты на электричество, коммунальные расходы, уборка.
Чтобы получить ПОДРОБНУЮ ПРЕЗЕНТАЦИЮ С ПЛАНИРОВКОЙ И ФОТОГРАФИЯМИ на этот объект, звоните. Высылаем в течение 15 минут по запросу! |
|
| Контактная информация | |
| Лот №: | 1026273 |
| Контактное лицо: | Ирина Владимировна |
| Телефон: | 8 (495) 822-78-71 доб.204 |


