Описание объекта лот №: 1025033
| Возможное использование: | Офисы Бизнес |
| Операция: | Продажа бизнеса |
| Площадь: | 623 кв. м |
| Этаж: | 2 |
| Местоположение | |
| Округ: | ЦАО |
| Метро: | Савеловская, Менделеевская, Белорусская |
| От метро: | 4 мин. пешком |
| Улица: | Бумажный проезд |
| ИФНС | № 7714 |
| Стоимость и условия | |
| Цена: |
686 070 000 руб. Сообщить о снижении цены
|
| Срок окупаемости: | 11 лет |
| Характеристики | |
| Тип здания: | Бизнес центры класса А |
| Отдельный вход: | ✓ |
| Этажность здания: | 10 |
| Наличие мебели: | ✓ |
| Наличие кондиционирования: | ✓ |
| Наличие лифта: | ✓ |
| Возможность подъезда фуры: | ✓ |
| Наличие пандуса: | ✓ |
| Наличие ж/д ветки: | ✓ |
| Наличие пропускной системы: | ✓ |
| Круглосуточный доступ: | ✓ |
| Наличие общепита в здании: | ✓ |
| Тип окон: | витринные |
| Описание | |
|
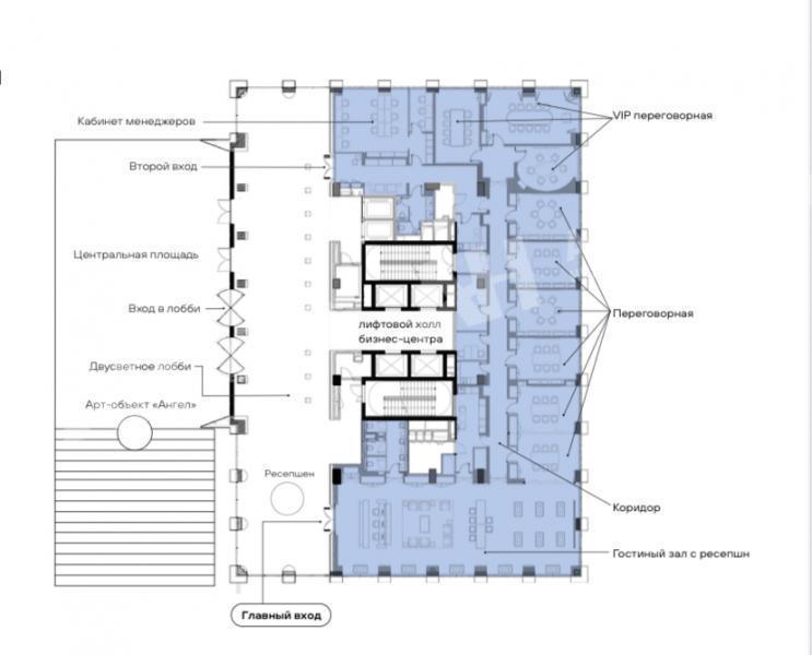
Лот №1025033 Продаем ГАБ в БЦ класса А+ с окупаемостью 11 лет. ВАЖНО: Арендатор на 15 летнем договоре с 2024 года, новое здание ! Это представительский офис 623 кв.м. с шикарным ремонтом И НАДЕЖНЫМ И МНОГОЛЕТНИМ Арендатором! Расположен в клубном бизнес центре класса А+, у м.Савеловская. Бизнес пространство состоит из нескольких строений (на фото), данный офис расположен в Башне С на 2м этаже, с прямым доступом из лобби. Правильная конфигурация, панорамное остекление, высокие потолки 4.55 м . Планировка: зона приема гостей, гостиная для мероприятий, 9 переговорных с функцией трансформации, опен спейс, мини кухня, санузлы и др. Дизайн от лондонского Kamelin Partners. Отделка: натуральный камень, керамика, металл, натуральное дерево. Остекление по периметру, 2 входа. Арендатор крупная девелоперская компания. Помещение свободного назначения в составе клубного бизнес-центра. СТАБИЛЬНЫЙ ДОХОД И ЛИКВИДНЫЙ ОБЪЕКТ! Доп. информацию готовы предоставить по запросу, показы - по договоренности, просим звонить за пару дней.
Чтобы получить ПОДРОБНУЮ ПРЕЗЕНТАЦИЮ С ПЛАНИРОВКОЙ И ФОТОГРАФИЯМИ на этот объект, звоните. Высылаем в течение 15 минут по запросу! |
|
| Доп. услуги: | - возможна продажа в кредит |
| Контактная информация | |
| Лот №: | 1025033 |
| Контактное лицо: | Яна Германовна |
| Телефон: | 8 (495) 822-78-71 доб.203 |


