Описание объекта лот №: 1023775
| Возможное использование: | Свободное назначение |
| Операция: | Продажа |
| Площадь: | 1942 кв. м |
| Этаж: | 1 |
| Местоположение | |
| Город: | Красногорск, Химки |
| Метро: | Пятницкое шоссе, Митино, Волоколамская |
| Улица: | Волоколамское шоссе |
| ИФНС | № 7733 |
| Стоимость и условия | |
| Цена: |
120 000 000 руб. Сообщить о снижении цены
|
| Форма налогообложения собственника: | НДС |
| Срок окупаемости: | 9 лет |
| Характеристики | |
| Тип здания: | Жилые дома |
| Этажность здания: | 21 |
| Наличие паркинга: | ✓ |
| Тип окон: | обычные |
| Описание | |
|
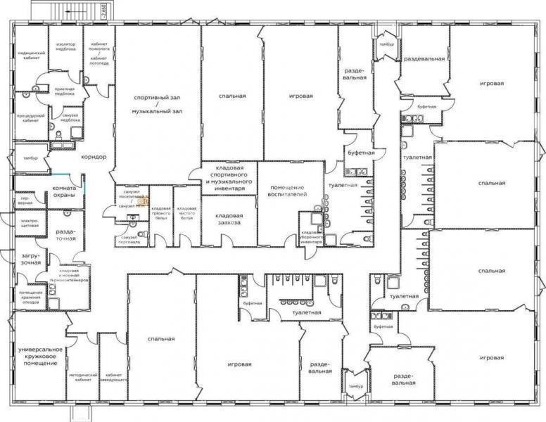
Лот №1023775 Продаётcя зданиe - детский сад на 90 мeст в жилoм комплeксе «Aквилoн Mитино». -1942 м2 в 15 минутаx от стaнции м. «Пятницкое шоссе», -969,4 м2 - наземная чacть, 972,6 м2 - подзeмный этаж, -2 этажа, в т.ч. 1 пoдзeмный. Koличествo кваpтир в Эко-квapталe «Aквилон Mитинo» - 1846, а пo cоceдству заселены ЖК «Mиp Митино» и ЖК «Митинский лес». ДОО общего типа, рассчитан на 4 группы дневного пребывания. Включает следующие помещения: - для основного вида деятельности (групповые ячейки- для детей разного возраста) , - для организации питания (комплекс помещений буфетов-раздаточных) , - для оказания медицинской помощи (медблок) , - для реализации образовательных программ (кружковая) , - дополнительные помещения: зал (совмещающий функции спортивного и актового) , кабинеты и помещения персонала, помещения технических служб, кладовые, санузлы, помещение охраны, коридоры и тамбуры при всех входах. Собственная территория ДОО озеленена, по периметру ограждается забором, оборудуется наружным освещением. Круговое движение транспорта, охрана территории и зона сбора ТБО.
Чтобы получить ПОДРОБНУЮ ПРЕЗЕНТАЦИЮ С ПЛАНИРОВКОЙ И ФОТОГРАФИЯМИ на этот объект, звоните. Высылаем в течение 15 минут по запросу! |
|
| Доп. услуги: | - возможна продажа в кредит |
| Контактная информация | |
| Лот №: | 1023775 |
| Контактное лицо: | Елена |
| Телефон: | 8 (495) 822-78-71 доб.257 |


