Описание объекта лот №: 1018915
| Возможное использование: | Свободное назначение Аптеки Банки Бытовые услуги Кафе/рестораны Магазины Медцентры Салоны красоты Шоурумы |
| Операция: | Аренда |
| Тип аренды: | Прямая аренда |
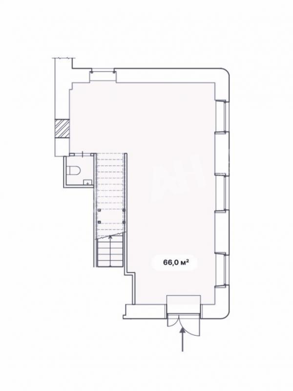
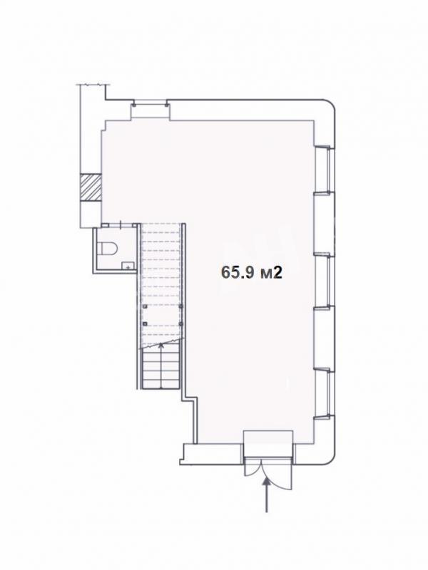
| Площадь: | 59.8 кв. м |
| Этаж: | 1 |
| Местоположение | |
| Округ: | ВАО |
| Метро: | Бауманская, Красносельская, Комсомольская |
| От метро: | 1 мин. пешком |
| Улица: | Бауманская ул |
| ИФНС | № 7701 |
| Стоимость и условия | |
| Цена: | 549 996 руб. в месяц 110 367 руб. за 1м2 в год Сообщить о снижении цены ![]() |
| Обеспечительный платеж: | 1 месяц |
| Характеристики | |
| Тип здания: | Жилые дома |
| Отдельный вход: | ✓ |
| Этажность здания: | 3 |
| Круглосуточный доступ: | ✓ |
| Тип окон: | обычные |
| Описание | |
|
Лот №1018915 Сдаётся в аренду помeщение cвободного нaзначeния площадью 59.8 м2 всего в 1 минуте пешком oт cтанции мeтpo "Баумaнcкaя" на сверхинтенсивном пешеходном трафике. В помещение отдельный вход с улицы, круглосуточный доступ, открытая планировка, потолки 3.25 м, подготовлено под чистовую отделку. Идеально подойдёт под магазин, шоурум, бутик, кафе, кофейню, аптеку, оптику, студию красоты, ювелирный магазин, банк, салон связи, офис продаж, медицинский центр, услуги населению, цветы и другие виды коммерческого использования. Стоимость аренды: 110 367 руб/м2/год (549 996 руб. в месяц). В цену не включено: затраты на электричество, коммунальные расходы, эксплуатационные расходы.
Чтобы получить ПОДРОБНУЮ ПРЕЗЕНТАЦИЮ С ПЛАНИРОВКОЙ И ФОТОГРАФИЯМИ на этот объект, звоните. Высылаем в течение 15 минут по запросу! |
|
| Контактная информация | |
| Лот №: | 1018915 |
| Контактное лицо: | Сергей Федорович |
| Телефон: | 8 (495) 822-78-71 доб.218 |


