Описание объекта лот №: 1015747
| Возможное использование: | Свободное назначение Аптеки Банки Бытовые услуги Кафе/рестораны Магазины Медцентры Нотариусы/турфирмы Офисы Салоны красоты Фитнес Фотостудии Шоурумы |
| Операция: | Аренда |
| Тип аренды: | Прямая аренда |
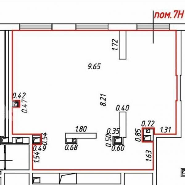
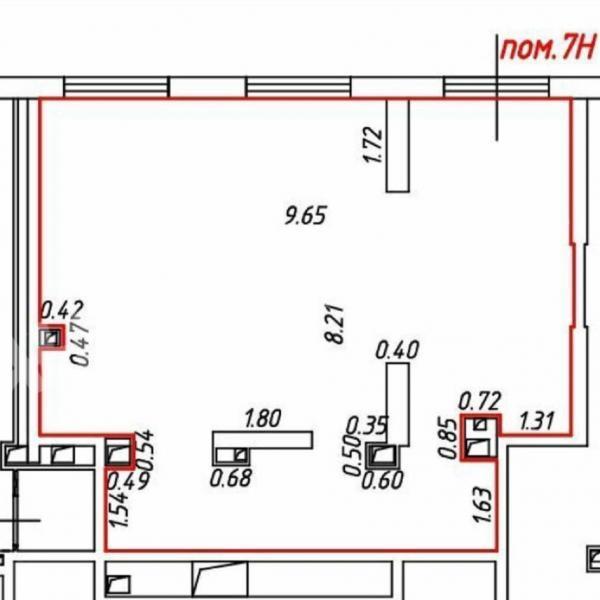
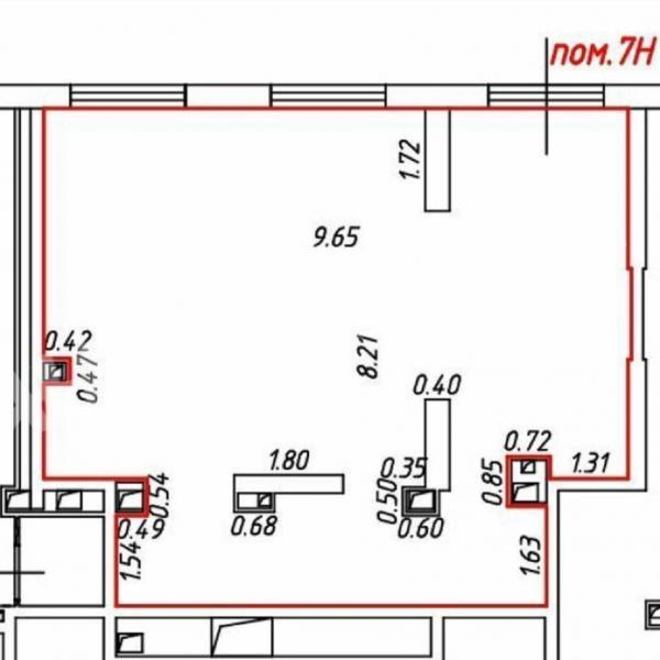
| Площадь: | 70.6 кв. м |
| Этаж: | 1 |
| Местоположение | |
| Округ: | ЮАО |
| Метро: | Нагатинская, Коломенская, Нагорная |
| От метро: | 17 мин. пешком |
| Улица: | 2-й Нагатинский проезд |
| ИФНС | № 7724 |
| Стоимость и условия | |
| Цена: | 197 680 руб. в месяц 33 600 руб. за 1м2 в год Сообщить о снижении цены ![]() |
| Обеспечительный платеж: | 1 месяц |
| Характеристики | |
| Тип здания: | Жилые дома |
| Отдельный вход: | ✓ |
| Этажность здания: | 33 |
| Круглосуточный доступ: | ✓ |
| Наличие паркинга: | ✓ |
| Тип окон: | витринные |
| Электрическая мощность, кВт: | 15 |
| Описание | |
|
Лот №1015747 Сдаётся в аренду помещение свободного назначения площадью 70.6 м2 на 1-ом этаже 33-этажного жилого дома в ЖК комфорт-класса "Второй Нагатинский", который будет состоять из 12 корпусов переменной (от 14 до 33) этажности и 5 331 квартиры. Прямо напротив помещения расположен детский сад на 200 мест, в непосредственной близости также будет располагаться школа на 550 учащихся. В помещении открытая планировка, витринные окна, отдельный вход с улицы, высокие потолки, эл. мощность 15 кВт. Возможное назначение: магазин, аптека, кафе, кофейня, салон красоты, медцентр, фитнес-студия, шоурум, детский центр, школа иностранных языков, образовательные курсы, пункт выдачи заказов, офис, услуги населению, цветы и другие виды коммерческого использования. Стоимость аренды: 33 600 руб/м2/год (197 680 руб. в месяц). В цену не включено: затраты на электричество, коммунальные расходы, эксплуатационные расходы.
Чтобы получить ПОДРОБНУЮ ПРЕЗЕНТАЦИЮ С ПЛАНИРОВКОЙ И ФОТОГРАФИЯМИ на этот объект, звоните. Высылаем в течение 15 минут по запросу!
Уважаемые коллеги, к сожалению мы не работаем по этому объекту с посредниками, но у нас есть партнерская программа по другим объектам! |
|
| Контактная информация | |
| Лот №: | 1015747 |
| Контактное лицо: | Сергей Федорович |
| Телефон: | 8 (495) 822-78-71 доб.218 |


