Описание объекта лот №: 1008299
| Возможное использование: | Свободное назначение Аптеки Банки Бытовые услуги Рабочие места Ломбарды Кафе/рестораны Магазины Медцентры Нотариусы/турфирмы Офисы Павильоны Салоны красоты Фитнес Фотостудии Шоурумы |
| Операция: | Аренда |
| Тип аренды: | Прямая аренда |
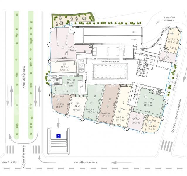
| Площадь: | 86.2 кв. м |
| Этаж: | 1 |
| Местоположение | |
| Округ: | ЦАО |
| Метро: | Арбатская АПЛ, Арбатская ФЛ, Охотный ряд |
| От метро: | 1 мин. пешком |
| Улица: | Никитский б-р |
| ИФНС | № 7703 |
| Стоимость и условия | |
| Цена: | 2 549 997 руб. в месяц 354 988 руб. за 1м2 в год Сообщить о снижении цены ![]() |
| Обеспечительный платеж: | 1 месяц |
| Эксплуатационные расходы включены: | ✓ |
| Характеристики | |
| Тип здания: | Жилые дома |
| Отдельный вход: | ✓ |
| Этажность здания: | 8 |
| Наличие паркинга: | ✓ |
| Кол-во парковочных мест: | 20 |
| Тип окон: | витринные |
| Электрическая мощность, кВт: | 50 |
| Описание | |
|
Лот №1008299 Предлагаем в аренду коммерческое помещение 86.2 м2 в престижном бизнес-доме «Никитский 6»! Идеальное расположение в самом сердце Москвы — на пересечении улицы Воздвиженка и Никитского бульвара, напротив станции метро «Арбатская». Всего 5 минут пешком до Большой Никитской улицы и знаменитых Патриарших прудов. Преимущества помещения: ✅ Отдельный вход с фасада ✅ Витринные окна и свободная планировка ✅ Высота потолков — 5.1 м ✅ Возможность размещения вывески ✅ Наличие мокрой точки ✅ Достаточная электрическая мощность для любого вида бизнеса Высокий пешеходный трафик, соседство с деловыми, культурными и образовательными центрами, а также отличная транспортная доступность (метро и наземный транспорт в шаговой доступности) гарантируют максимальную проходимость и интерес со стороны клиентов. Идеально подойдёт для бутика, кафе, салона, офиса или show-room! Стоимость аренды: 354 988 руб/м2/год (2 549 998 руб. в месяц). В цену включено: эксплуатационные расходы. В цену не включено: затраты на электричество, коммунальные расходы, уборка.
Чтобы получить ПОДРОБНУЮ ПРЕЗЕНТАЦИЮ С ПЛАНИРОВКОЙ И ФОТОГРАФИЯМИ на этот объект, звоните. Высылаем в течение 15 минут по запросу! |
|
| Контактная информация | |
| Лот №: | 1008299 |
| Контактное лицо: | Алексей Владимирович |
| Телефон: | 8 (495) 822-78-71 доб.217 |


