Описание объекта лот №: 1001678
| Возможное использование: | Офисы |
| Операция: | Аренда |
| Площадь: | 271.9 кв. м |
| Этаж: | 2 |
| Местоположение | |
| Округ: | СЗАО |
| Метро: | Спартак, Тушинская, Щукинская |
| От метро: | 9 мин. пешком |
| Улица: | Водников ул |
| ИФНС | № 7733 |
| Стоимость и условия | |
| Цена: | 339 875 руб. в месяц 15 000 руб. за 1м2 в год Сообщить о снижении цены ![]() |
| Обеспечительный платеж: | 2 месяца |
| Эксплуатационные расходы включены: | ✓ |
| Характеристики | |
| Тип здания: | Бизнес центры класса B |
| Этажность здания: | 3 |
| Наличие кондиционирования: | ✓ |
| Наличие пропускной системы: | ✓ |
| Наличие паркинга: | ✓ |
| Кол-во парковочных мест: | 300 |
| Наличие общепита в здании: | ✓ |
| Электрическая мощность, кВт: | 10 |
| Описание | |
|
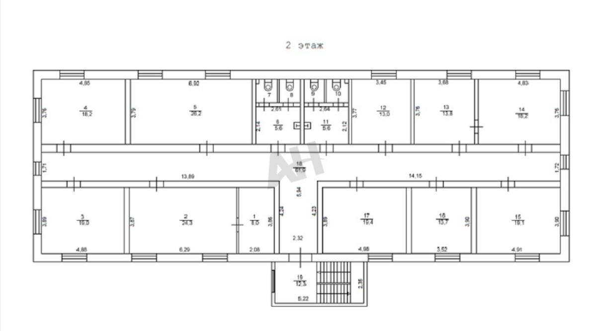
Лот №1001678 Предлагается в аренду офисный блок общей площадью 271.9 кв. м. на 2 этаже (полностью этаж). Ул. Водников, д. 2, стр. 17. Кабинетная планировка, которую возможно изменить по предварительному согласованию. Два санузла расположены непосредственно на этаже. Электроснабжение составляет 15 кВт. Объект находится на территории бизнес-парка «Водники», обладающей собственной благоустроенной территорией. Действует упрощенная система налогообложения. Заключается краткосрочный договор аренды сроком на 11 месяцев. Страховой депозит в размере двух месяцев базовой арендной платы. Инфраструктура бизнес-парка включает фитнес-клуб с бассейном, магазин, кафе и кафетерий самообслуживания. Режим доступа: пеший вход свободный с 7:00 до 23:00, въезд автотранспорта осуществляется по пропускам или на основании поданных заявок. До объекта удобно добраться общественным транспортом. От метро «Спартак» пешая доступность составляет 12 минут. От станций метро «Сходненская» и «Сокол» следует трамвай №6 до остановки «Канал им. Москвы». От метро «Сокол» также курсирует автобус №356 до той же остановки. Стоимость аренды: 15 000 руб/м2/год (339 875 руб. в месяц). В цену включено: эксплуатационные расходы. В цену не включено: затраты на электричество, коммунальные расходы, уборка.
Чтобы получить ПОДРОБНУЮ ПРЕЗЕНТАЦИЮ С ПЛАНИРОВКОЙ И ФОТОГРАФИЯМИ на этот объект, звоните. Высылаем в течение 15 минут по запросу! |
|
| Контактная информация | |
| Лот №: | 1001678 |
| Контактное лицо: | Ринат |
| Телефон: | 8 (495) 822-78-71 доб.232 |


