Описание объекта лот №: 998992
| Возможное использование: | Офисы |
| Операция: | Аренда |
| Тип аренды: | Прямая аренда |
| Площадь: | 192 кв. м |
| Этаж: | 8 |
| Местоположение | |
| Округ: | ЮЗАО |
| Метро: | Калужская, Зюзино, Новые Черемушки |
| От метро: | 12 мин. пешком |
| Улица: | Научный проезд |
| ИФНС | № 7728 |
| Стоимость и условия | |
| Цена: | 346 672 руб. в месяц + НДС 21 667 руб. за 1м2 в год + НДС Сообщить о снижении цены ![]() |
| Форма налогообложения собственника: | НДС |
| Обеспечительный платеж: | 1 месяц |
| Коммунальные услуги включены: | ✓ |
| Эксплуатационные расходы включены: | ✓ |
| Электроэнергия включена: | ✓ |
| Характеристики | |
| Тип здания: | Бизнес центры класса А |
| Этажность здания: | 12 |
| Наличие кондиционирования: | ✓ |
| Наличие лифта: | ✓ |
| Наличие пропускной системы: | ✓ |
| Круглосуточный доступ: | ✓ |
| Кол-во парковочных мест: | 2 |
| Наличие общепита в здании: | ✓ |
| Тип окон: | обычные |
| Описание | |
|
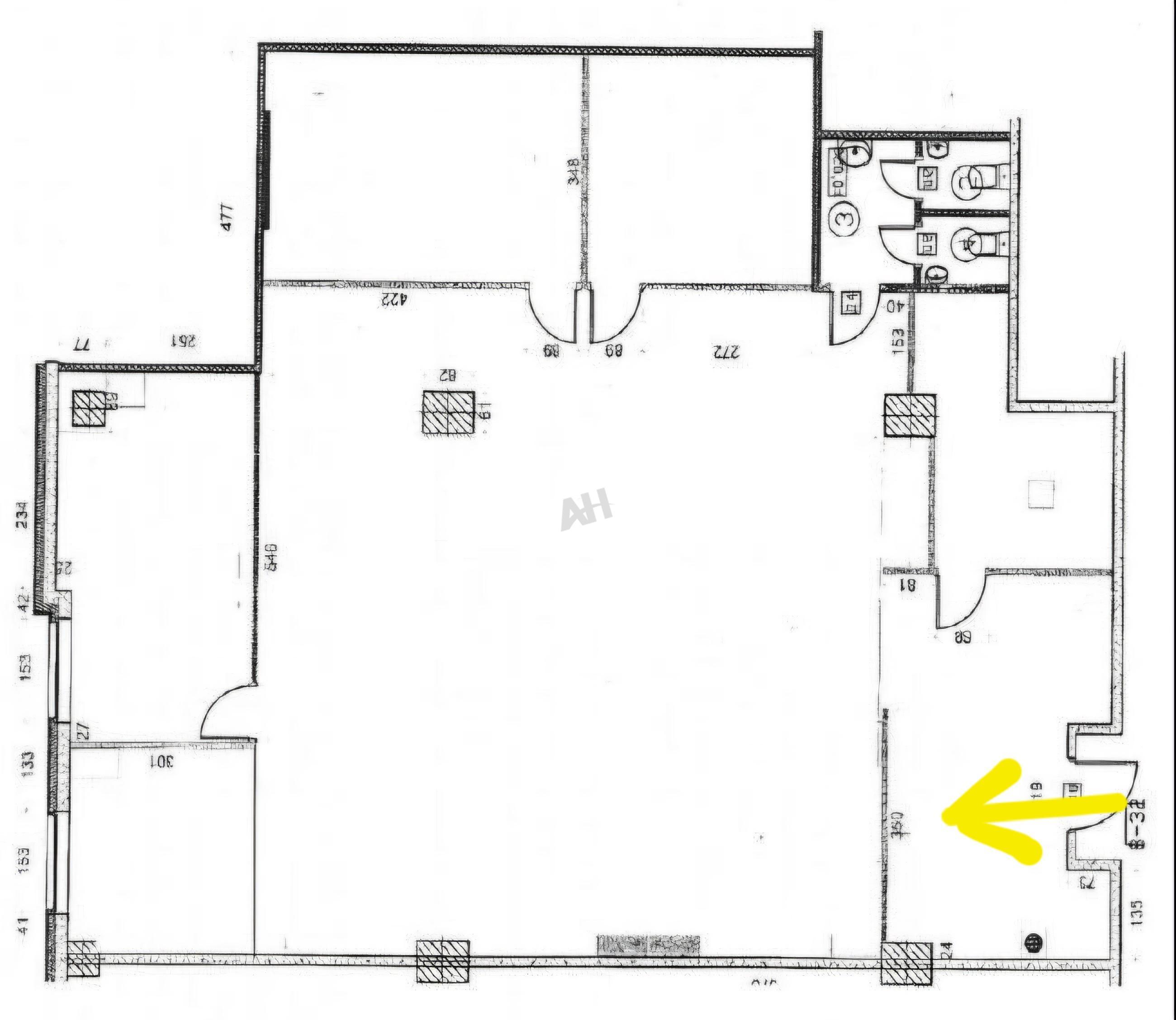
Лот №998992 Сдается офис площадью 192 кв.м. в БЦ класса Б+, поделен на 2 кабинета, зал, переговорную, серверную и кухню, выполнен свежий евроремонт, установлены кондиционеры, прямая аренда, юридический адрес по 28 налоговой, подземная парковка, доступ 24/7, свободен и готов к въезду. Стоимость аренды: 21 667 руб/м2/год (346 672 руб. в месяц), НДС оплачивается дополнительно. В цену включено: затраты на электричество, коммунальные расходы, эксплуатационные расходы.
Чтобы получить ПОДРОБНУЮ ПРЕЗЕНТАЦИЮ С ПЛАНИРОВКОЙ И ФОТОГРАФИЯМИ на этот объект, звоните. Высылаем в течение 15 минут по запросу! |
|
| Контактная информация | |
| Лот №: | 998992 |
| Контактное лицо: | Семен Вячеславович |
| Телефон: | 8 (495) 822-78-71 доб.238 |


