Описание объекта лот №: 998705
| Возможное использование: | Свободное назначение Авиа/ж-д кассы Аптеки Банки Бытовые услуги Кафе/рестораны Магазины Медцентры Нотариусы/турфирмы Офисы Салоны красоты Столовые Фитнес Фотостудии Шоурумы |
| Операция: | Продажа |
| Площадь: | 181.4 кв. м |
| Этаж: | 1 |
| Местоположение | |
| Округ: | ЦАО |
| Метро: | Речной вокзал, Смоленская АПЛ, Смоленская ФЛ |
| Улица: | Плющиха ул |
| ИФНС | № 7704 |
| Стоимость и условия | |
| Цена: |
149 000 000 руб. Сообщить о снижении цены
|
| Срок окупаемости: | 9 лет |
| Обеспечительный платеж: | Без залога |
| Характеристики | |
| Этажность здания: | 9 |
| Описание | |
|
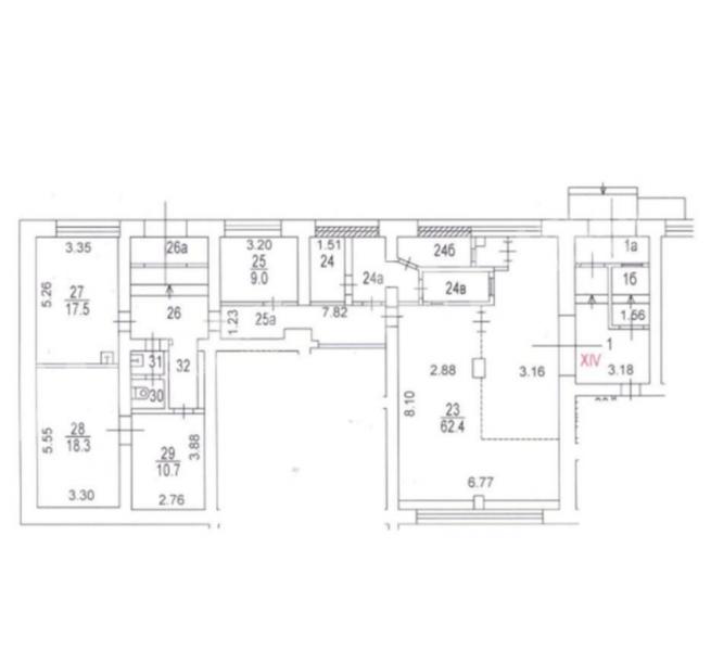
Лот №998705 Продаётся помещение свободного назначения 181,4 м² О помещении: Площадь — 181,4 м². Первый этаж жилого дома. Две самостоятельные входные группы с фасада. Свободная планировка, правильная конфигурация. Высота потолков — 4,6 м. Возможность размещения вывески на фасаде. Подходит под ресторан, медицинский центр, салон, премиальные услуги, офис клиентского формата. Локация: Центральный район Москвы — Хамовники. Рядом деловой кластер и туристические маршруты. Высокий пешеходный поток платёжеспособной аудитории. Сформированное окружение премиального сегмента. Район с устойчивым спросом и ограниченным предложением коммерческих площадей. Преимущества: Статусная центральная локация. Две входные группы — гибкость эксплуатации. Большая высота потолков и высокая электрическая мощность. Подходит под широкий спектр коммерческих и сервисных форматов. Объекты в данной локации демонстрируют стабильную капитализацию и низкие риски простоев. Показ по договорённости.
Чтобы получить ПОДРОБНУЮ ПРЕЗЕНТАЦИЮ С ПЛАНИРОВКОЙ И ФОТОГРАФИЯМИ на этот объект, звоните. Высылаем в течение 15 минут по запросу! |
|
| Доп. услуги: | - возможна продажа в кредит |
| Контактная информация | |
| Лот №: | 998705 |
| Контактное лицо: | Апекс |
| Телефон: | 8 (495) 822-78-71 доб.333 |


