Описание объекта лот №: 997272
| Возможное использование: | Свободное назначение Аптеки Бытовые услуги Кафе/рестораны Магазины Офисы Салоны красоты Сауны Бизнес Фотостудии Шоурумы Новостройки |
| Операция: | Продажа бизнеса |
| Площадь: | 129.2 кв. м |
| Этаж: | 1 |
| Местоположение | |
| Город: | Андреевка, Зеленоград |
| Улица: | Пятницкое шоссе |
| ИФНС | № 7735 |
| Стоимость и условия | |
| Цена: |
43 000 000 руб. Сообщить о снижении цены
|
| Срок окупаемости: | 10 лет |
| Обеспечительный платеж: | Без залога |
| Характеристики | |
| Тип здания: | Жилые дома |
| Этажность здания: | 32 |
| Электрическая мощность, кВт: | 25 |
| Срок сдачи: | 2028 г. (3 кв.) |
| Описание | |
|
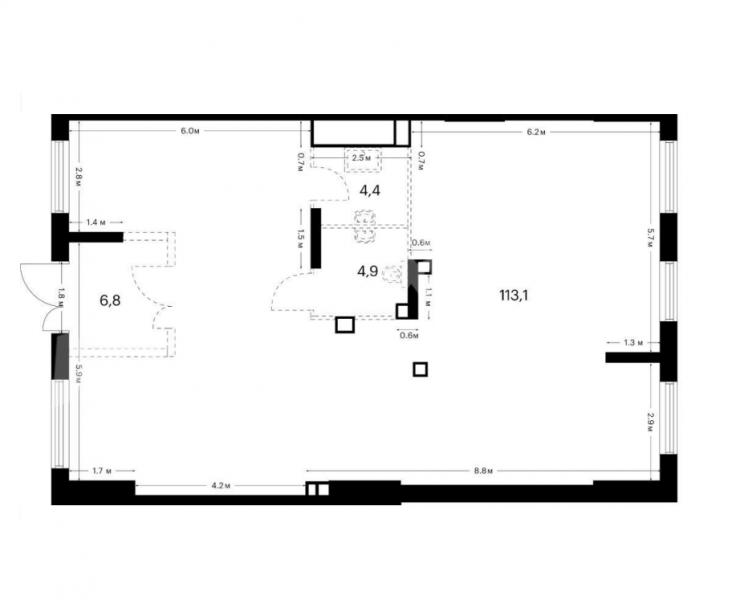
Лот №997272 Продаётся готовый арендный бизнес 129,2 м², ЖК «Зелёный Парк» О помещении: Площадь — 129,2 м². Первый этаж торгового стилобата. Свободная планировка, высота потолков — 4,07 м. Два витринных окна, вход с фасада. Электрическая мощность — 25 кВт, возможное увеличение. Полная отделка от застройщика. Передача ключей — до 1 сентября 2027 года. Арендатор: Федеральная сеть «Винлаб». Договор аренды — 7 лет. Безусловная индексация 5% с 4-го года. Локация: Центр квартала, напротив корпуса 5.3, рядом променад и парковка ЖК расположен в 20 минутах от МЦД «Крюково», рядом крупная рекреационная зона. Первая очередь сдана, ведётся строительство следующих корпусов. По генплану — ещё 10 корпусов, формируется масштабный жилой кластер. Преимущества: Надёжный арендатор федерального уровня. Перспективный развивающийся район с ростом населения. Сильный фасад и высокая видимость. Готовая отделка — снижение затрат на запуск. Комфортный долгосрочный договор с индексацией. Показ — по договорённости.
Чтобы получить ПОДРОБНУЮ ПРЕЗЕНТАЦИЮ С ПЛАНИРОВКОЙ И ФОТОГРАФИЯМИ на этот объект, звоните. Высылаем в течение 15 минут по запросу! |
|
| Доп. услуги: | - возможна продажа в кредит |
| Контактная информация | |
| Лот №: | 997272 |
| Контактное лицо: | Апекс |
| Телефон: | 8 (495) 822-78-71 доб.333 |


