Описание объекта лот №: 996838
| Возможное использование: | Офисы |
| Операция: | Аренда |
| Площадь: | 130 кв. м |
| Этаж: | 5 |
| Местоположение | |
| Округ: | ЦАО |
| Метро: | Маяковская, Пушкинская, Новослободская |
| Улица: | Оружейный пер |
| ИФНС | № 7710 |
| Стоимость и условия | |
| Цена: | 385 212 руб. в месяц + НДС 35 558 руб. за 1м2 в год + НДС Сообщить о снижении цены ![]() |
| Форма налогообложения собственника: | НДС |
| Обеспечительный платеж: | 2 месяца |
| Коммунальные услуги включены: | ✓ |
| Эксплуатационные расходы включены: | ✓ |
| Характеристики | |
| Тип здания: | Бизнес центры класса B |
| Этажность здания: | 12 |
| Наличие мебели: | ✓ |
| Наличие кондиционирования: | ✓ |
| Наличие лифта: | ✓ |
| Наличие пропускной системы: | ✓ |
| Круглосуточный доступ: | ✓ |
| Наличие паркинга: | ✓ |
| Наличие общепита в здании: | ✓ |
| Тип окон: | обычные |
| Описание | |
|
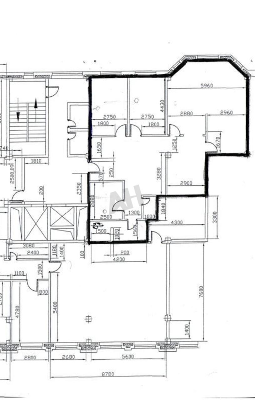
Лот №996838 Офис на 5 этаже общей площадью 130 м2, расположено в 4 мин от м. Маяковская. Планировка кабинетная+ рецепшн (перегородки мобильные, возможна любая перепланировка). Помещение с ремонтом( требует легкой косметики). Есть лифт. Система контроля доступа: круглосуточная. Система кондиционирования: центральная система (чиллерфанкойл). Система вентиляции: приточно-вытяжная. Система пожаротушения: автоматическая (вода, газ и др.). Возможна аренда с мебелью. Стоимость аренды: 35 558 руб/м2/год (385 212 руб. в месяц), НДС оплачивается дополнительно. В цену включено: коммунальные расходы, эксплуатационные расходы. В цену не включено: затраты на электричество, уборка.
Чтобы получить ПОДРОБНУЮ ПРЕЗЕНТАЦИЮ С ПЛАНИРОВКОЙ И ФОТОГРАФИЯМИ на этот объект, звоните. Высылаем в течение 15 минут по запросу! |
|
| Контактная информация | |
| Лот №: | 996838 |
| Контактное лицо: | Михаил Вячеславович |
| Телефон: | 8 (495) 822-78-71 доб.216 |


