Описание объекта лот №: 996475
| Возможное использование: | Свободное назначение Аптеки Банки Бытовые услуги Ломбарды Магазины Медцентры Нотариусы/турфирмы Офисы Павильоны Салоны красоты Фитнес Фотостудии Шоурумы |
| Операция: | Аренда |
| Тип аренды: | Прямая аренда |
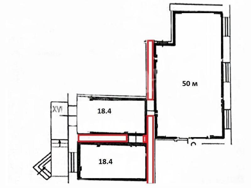
| Площадь: | 86.7 кв. м |
| Этаж: | 1 |
| Местоположение | |
| Округ: | ЮЗАО |
| Метро: | Академическая, Профсоюзная, Вавиловская |
| От метро: | 3 мин. пешком |
| Улица: | Профсоюзная ул |
| ИФНС | № 7727 |
| Стоимость и условия | |
| Цена: | 529 997 руб. в месяц 73 356 руб. за 1м2 в год Сообщить о снижении цены ![]() |
| Обеспечительный платеж: | 1 месяц |
| Эксплуатационные расходы включены: | ✓ |
| Характеристики | |
| Тип здания: | Жилые дома |
| Этажность здания: | 8 |
| Наличие кондиционирования: | ✓ |
| Наличие лифта: | ✓ |
| Круглосуточный доступ: | ✓ |
| Наличие паркинга: | ✓ |
| Тип окон: | витринные |
| Электрическая мощность, кВт: | 25 |
| Описание | |
|
Лот №996475 Сдается помещение свободного назначения площадью 86,7 м2. Ранее был медицинский центр. 150 метров от м. Академическая. Первый этаж. Отдельный вход. Высота потолка 3м. Электрическая мощность 25 кВт. Вывеска на фасаде. Долгосрочный договор. Режим работы 24/7. Интенсивный пешеходный трафик. Стоимость аренды: 73 356 руб/м2/год (529 998 руб. в месяц). В цену включено: эксплуатационные расходы. В цену не включено: затраты на электричество, коммунальные расходы.
Чтобы получить ПОДРОБНУЮ ПРЕЗЕНТАЦИЮ С ПЛАНИРОВКОЙ И ФОТОГРАФИЯМИ на этот объект, звоните. Высылаем в течение 15 минут по запросу! |
|
| Контактная информация | |
| Лот №: | 996475 |
| Контактное лицо: | Анна |
| Телефон: | 8 (495) 822-78-71 доб.223 |


