Описание объекта лот №: 991561
| Возможное использование: | Офисы |
| Операция: | Аренда |
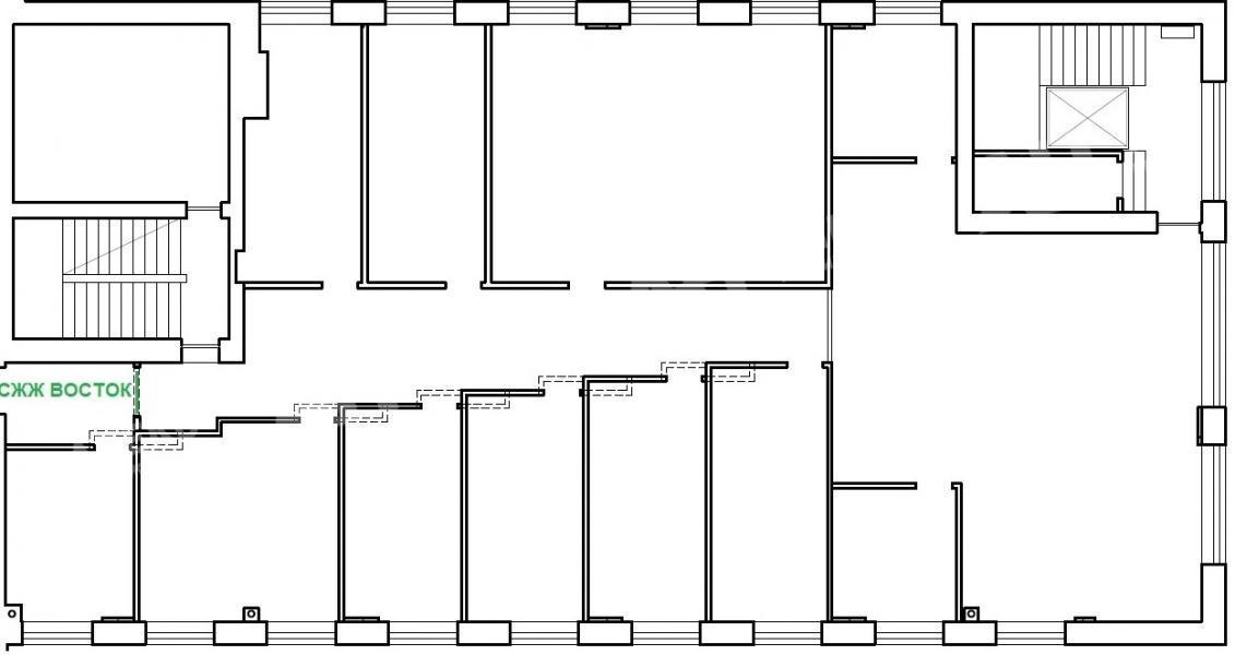
| Площадь: | 353.6 кв. м |
| Этаж: | 4 |
| Местоположение | |
| Округ: | ЦАО |
| Метро: | Шаболовская, Октябрьская, Серпуховская |
| От метро: | 4 мин. пешком |
| Улица: | Шаболовка ул |
| ИФНС | № 7725 |
| Стоимость и условия | |
| Цена: | 875 160 руб. в месяц 29 700 руб. за 1м2 в год Сообщить о снижении цены ![]() |
| Форма налогообложения собственника: | НДС |
| Обеспечительный платеж: | Без залога |
| Эксплуатационные расходы включены: | ✓ |
| Характеристики | |
| Тип здания: | Бизнес центры класса B |
| Этажность здания: | 8 |
| Наличие лифта: | ✓ |
| Наличие паркинга: | ✓ |
| Описание | |
|
Лот №991561 Предлагается к рассмотрению офисное помещение общей площадью 353.6 м², расположенное на четвертом этаже здания. Локация отличается высокой транспортной доступностью, в пешей доступности в четырех минутах находится станция метро «Шаболовская». Помещение имеет отдельный вход и оснащено лифтом. Для обеспечения безопасности организована круглосуточная система контроля и управления доступом. Инфраструктура офиса включает центральную систему кондиционирования и приточно-вытяжную вентиляцию. Установлена система противопожарной защиты в виде сигнализации и оповещения. Стоимость аренды: 29 700 руб/м2/год (875 160 руб. в месяц). В цену включено: эксплуатационные расходы. В цену не включено: затраты на электричество.
Чтобы получить ПОДРОБНУЮ ПРЕЗЕНТАЦИЮ С ПЛАНИРОВКОЙ И ФОТОГРАФИЯМИ на этот объект, звоните. Высылаем в течение 15 минут по запросу! |
|
| Контактная информация | |
| Лот №: | 991561 |
| Контактное лицо: | Виктория |
| Телефон: | 8 (495) 822-78-71 доб.265 |


