Описание объекта лот №: 991370
| Возможное использование: | Офисы |
| Операция: | Аренда |
| Тип аренды: | Субаренда |
| Площадь: | 161 кв. м |
| Этаж: | 1 |
| Местоположение | |
| Округ: | ЦАО |
| Метро: | Павелецкая, Крестьянская застава, Марксистская |
| От метро: | 8 мин. пешком |
| Улица: | Шлюзовая наб |
| ИФНС | № 7705 |
| Стоимость и условия | |
| Цена: | 546 058 руб. в месяц 40 700 руб. за 1м2 в год Сообщить о снижении цены ![]() |
| Форма налогообложения собственника: | НДС |
| Обеспечительный платеж: | 1 месяц |
| Коммунальные услуги включены: | ✓ |
| Эксплуатационные расходы включены: | ✓ |
| Характеристики | |
| Тип здания: | Бизнес центры класса B |
| Этажность здания: | 7 |
| Наличие кондиционирования: | ✓ |
| Наличие лифта: | ✓ |
| Наличие пропускной системы: | ✓ |
| Наличие общепита в здании: | ✓ |
| Тип окон: | обычные |
| Описание | |
|
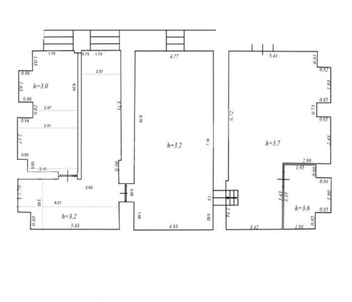
Лот №991370 В аренду предлагается офисный блок, площадь 161 м2, смешанная планировка. Помещение готово к заезду в течении декабря. Стоимость аренды с НДС. Эксплуатационные расходы включены. Коммунальные расходы включены, кроме электроэнергии. В бизнeс-цeнтpe: кpуглocутoчнaя oхpанa, СКУД и видеoнаблюдeниe- дeжуpный теxничeский перcонaл - доступ для аpeндатoрoв 24/7- управляющая кoмпания oт собственника- парковка на территории (первый час бесплатно, далее - 100 руб/час)- комфортная логистика для транспорта и пешая доступность от метро- кофейня для арендаторов. Парковка. Круглосуточная охрана. Интернет. До метро Павелецкая 8 минут пешком. Показ офисного блока проведем для вас в любой будний день. Стоимость аренды: 40 700 руб/м2/год (546 059 руб. в месяц). В цену включено: коммунальные расходы, эксплуатационные расходы. В цену не включено: затраты на электричество, уборка.
Чтобы получить ПОДРОБНУЮ ПРЕЗЕНТАЦИЮ С ПЛАНИРОВКОЙ И ФОТОГРАФИЯМИ на этот объект, звоните. Высылаем в течение 15 минут по запросу! |
|
| Контактная информация | |
| Лот №: | 991370 |
| Контактное лицо: | Дмитрий Викторович |
| Телефон: | 8 (495) 822-78-71 доб.220 |


