Описание объекта лот №: 990763
| Возможное использование: | Магазины Аптеки Павильоны | |||||||||||||||||||||
| Операция: | Продажа | |||||||||||||||||||||
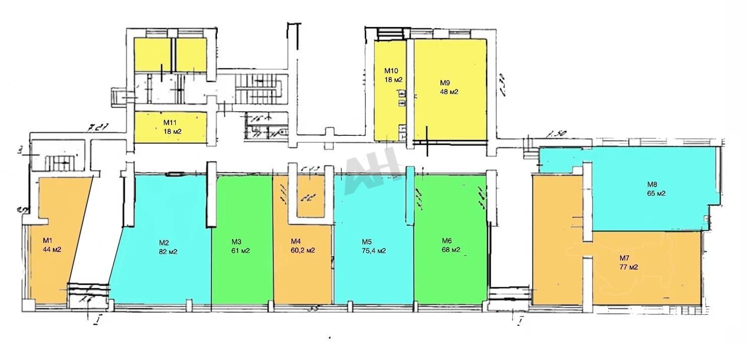
| Площадь: | 18 - 143 кв. м | |||||||||||||||||||||
| Этаж: | 1 | |||||||||||||||||||||
| Местоположение | ||||||||||||||||||||||
| Округ: | ||||||||||||||||||||||
| Метро: | Ростокино (МЦК), Улица Сергея Эйзенштейна, Выставочный центр | |||||||||||||||||||||
| От метро: | 8 мин. пешком | |||||||||||||||||||||
| Улица: | Мира пр-кт | |||||||||||||||||||||
| ИФНС | № 7717 | |||||||||||||||||||||
| Стоимость и условия | ||||||||||||||||||||||
| Цена: |
4 500 000 руб. за 18 кв. м Сообщить о снижении цены
|
|||||||||||||||||||||
| Срок окупаемости: | 10 лет | |||||||||||||||||||||
| Характеристики | ||||||||||||||||||||||
| Тип здания: | Жилые дома | |||||||||||||||||||||
| Отдельный вход: | ✓ | |||||||||||||||||||||
| Этажность здания: | 11 | |||||||||||||||||||||
| Круглосуточный доступ: | ✓ | |||||||||||||||||||||
| Наличие паркинга: | ✓ | |||||||||||||||||||||
| Описание | ||||||||||||||||||||||
|
Лот №990763 Предлагаются к продаже торговые помещения с панорамными фасадными окнами. Шикарное расположение на 1 линии Проспекта Мира в 9 мин пешком от м.ВДНХ, м.Ростокино (МЦК), м.Ботанический сад. Локация отличается высоким трафиком благодаря расположению в крупном жилом массиве с интенсивным пешеходным и автомобильным потоком. В непосредственной близости остановка общественного транспорта. Объекты расположены по встроенно-пристроенном здании с 3 отдельными входами и витринным остеклением. Высота потолков 3,5 метра, все центральные коммуникации, выделенная электрическая мощность составляет 90 кВт. Имеется возможность для размещения рекламной вывески. Дополнительно к основному пространству возможно рассмотрение предоставления полезной площади в подвальном помещении здания. Актуальные площади и цены (м2):
Чтобы получить ПОДРОБНУЮ ПРЕЗЕНТАЦИЮ С ПЛАНИРОВКОЙ И ФОТОГРАФИЯМИ на этот объект, звоните. Высылаем в течение 15 минут по запросу! |
||||||||||||||||||||||
| Доп. услуги: | - возможна продажа в кредит |
|||||||||||||||||||||
| Контактная информация | ||||||||||||||||||||||
| Лот №: | 990763 | |||||||||||||||||||||
| Контактное лицо: | Андрей Валерьевич | |||||||||||||||||||||
| Телефон: | 8 (495) 822-78-71 доб.253 | |||||||||||||||||||||


