Описание объекта лот №: 990034
| Возможное использование: | Свободное назначение Бизнес |
| Операция: | Продажа бизнеса |
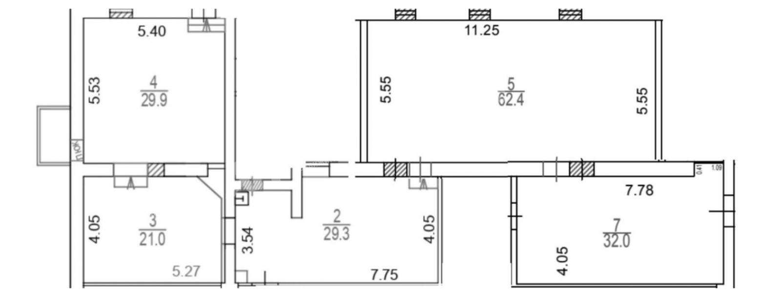
| Площадь: | 175.3 кв. м |
| Этаж: | цоколь |
| Местоположение | |
| Округ: | ЮВАО |
| Метро: | Проспект Вернадского, Печатники, Волжская |
| От метро: | 13 мин. пешком |
| Улица: | 1-я Текстильщиков ул |
| ИФНС | № 7723 |
| Стоимость и условия | |
| Цена: |
19 500 000 руб. Сообщить о снижении цены
|
| Срок окупаемости: | 7 лет |
| Обеспечительный платеж: | Без залога |
| Характеристики | |
| Тип здания: | Жилые дома |
| Этажность здания: | 5 |
| Наличие паркинга: | ✓ |
| Описание | |
|
Лот №990034 Представлено к продаже коммерческое помещение общей площадью 69,6 кв. м., расположенное по адресу: ул. Марии Ульяновой, дом 17к3. Объект обладает отдельным входом. Высота потолков составляет 2,6 метра, выделенная электрическая мощность — 15 кВт. Локация отличается превосходной транспортной доступностью: пешая доступность до станции метро «Проспект Вернадского» составляет 10 минут, а до остановки общественного транспорта — всего 2 минуты. В непосредственной близости находятся школа и детский сад. Высокая проходимость обеспечена за счет проживания в радиусе 10-минутной пешей доступности более 21 570 человек, что гарантирует постоянный поток потенциальных клиентов. Помещение идеально подойдет для организации бизнеса, ориентированного на местных жителей. Назначением может стать торговая точка, салон красоты или барбершоп, агентство недвижимости, медицинский кабинет, пункт выдачи заказов, пекарня, кофейня навынос или офис. Ключевыми преимуществами объекта являются прямая доступность для клиентов и конфиденциальность благодаря отдельному входу, а также достаточная электрическая мощность для работы современного оборудования. Предложение представляет выгодную возможность приобретения помещения в густонаселенном и удобном районе Москвы.
Чтобы получить ПОДРОБНУЮ ПРЕЗЕНТАЦИЮ С ПЛАНИРОВКОЙ И ФОТОГРАФИЯМИ на этот объект, звоните. Высылаем в течение 15 минут по запросу! |
|
| Доп. услуги: | - возможна продажа в кредит |
| Контактная информация | |
| Лот №: | 990034 |
| Контактное лицо: | Апекс |
| Телефон: | 8 (495) 822-78-71 доб.313 |


