Описание объекта лот №: 985765
| Возможное использование: | Офисы |
| Операция: | Аренда |
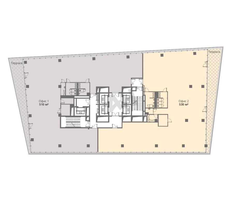
| Площадь: | 530 кв. м |
| Этаж: | 10 |
| Местоположение | |
| Округ: | ЮЗАО |
| Метро: | Новаторская, Воронцовская, Беляево |
| От метро: | 7 мин. пешком |
| Улица: | Обручева ул |
| ИФНС | № 7728 |
| Стоимость и условия | |
| Цена: | 1 832 917 руб. в месяц 41 500 руб. за 1м2 в год Сообщить о снижении цены ![]() |
| Форма налогообложения собственника: | НДС |
| Обеспечительный платеж: | 1 месяц |
| Эксплуатационные расходы включены: | ✓ |
| Характеристики | |
| Тип здания: | Бизнес центры класса А |
| Отдельный вход: | ✓ |
| Этажность здания: | 13 |
| Наличие кондиционирования: | ✓ |
| Наличие лифта: | ✓ |
| Наличие пропускной системы: | ✓ |
| Описание | |
|
Лот №985765 Предлагается к аренде офисное помещение общей площадью 530 м², находящееся на 10 этаже бизнес-центра. Помещение передается в состоянии shell&core, без отделки и мебели, что предоставляет арендатору полную свободу для реализации собственных планировочных и дизайнерских решений. Высота потолков от 5 до 10 метров и наличие закладных под антресоль позволяют увеличить полезную площадь до 40%. Отделка может быть выполнена по индивидуальному проекту, условия обсуждаются отдельно. В помещении имеется мокрая точка, витражное остекление с открыванием и высокие нагрузки на перекрытия — 450 кг/м². Инфраструктура здания обеспечивает высокий уровень комфорта и безопасности. Доступ организуется по пропускам, действует круглосуточная охрана и система контроля доступа. Для пассажирских и грузовых перевозок функционируют четыре лифта Kleemann и один грузовой. Транспортная доступность дополнена двухуровневым подземным паркингом на 88 мест и гостевой наземной парковкой. Инженерные системы включают центральное кондиционирование по схеме «чиллер-фанкойл» и приточно-вытяжную вентиляцию от компании NED, а также независимый сервисный маршрут. Бизнес-центр расположен в динамично развивающемся деловом районе столицы. Его архитектура, основанная на принципе «тектонических сдвигов», и использование натуральных материалов создают уникальную рабочую атмосферу. Проект был разработан известным бюро Blank Architects, имеющим обширный портфель реализованных объектов в России и Европе. Для резидентов предусмотрены дополнительные возможности, включая благоустроенную эксплуатируемую кровлю и комфортабельные террасы. Приглашаем вас на просмотр! Звоните! Стоимость аренды: 41 500 руб/м2/год (1 832 917 руб. в месяц). В цену включено: эксплуатационные расходы. В цену не включено: затраты на электричество, коммунальные расходы, уборка.
Чтобы получить ПОДРОБНУЮ ПРЕЗЕНТАЦИЮ С ПЛАНИРОВКОЙ И ФОТОГРАФИЯМИ на этот объект, звоните. Высылаем в течение 15 минут по запросу! |
|
| Контактная информация | |
| Лот №: | 985765 |
| Контактное лицо: | Кира Константиновна |
| Телефон: | 8 (495) 822-78-71 доб.246 |


