Описание объекта лот №: 984931
| Возможное использование: | Офисы |
| Операция: | Аренда |
| Тип аренды: | Прямая аренда |
| Площадь: | 71 кв. м |
| Этаж: | 1 |
| Местоположение | |
| Округ: | ЦАО |
| Метро: | Савеловская, Менделеевская, Белорусская |
| От метро: | 8 мин. пешком |
| Улица: | Бутырский Вал ул |
| ИФНС | № 7707 |
| Стоимость и условия | |
| Цена: | 213 000 руб. в месяц 36 000 руб. за 1м2 в год Сообщить о снижении цены ![]() |
| Обеспечительный платеж: | 1 месяц |
| Коммунальные услуги включены: | ✓ |
| Эксплуатационные расходы включены: | ✓ |
| Характеристики | |
| Тип здания: | Бизнес центры класса B |
| Этажность здания: | 5 |
| Наличие кондиционирования: | ✓ |
| Наличие пропускной системы: | ✓ |
| Наличие паркинга: | ✓ |
| Кол-во парковочных мест: | 1 |
| Наличие общепита в здании: | ✓ |
| Тип окон: | обычные |
| Описание | |
|
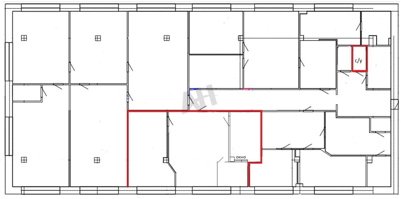
Лот №984931 Предлагается комфортабельный офис площадью 71 кв.м., расположенный на первом этаже бизнес-центра класса Б+. Помещение обладает высокими потолками и включает в себя три кабинета. Офис сдается с выполненным ремонтом и имеет отдельный собственный санузел на этаже. К помещению прилагается одно машиноместо на охраняемой территории бизнес-центра. Стоимость аренды парковочного места составляет 15000 рублей в месяц. Для гостей доступна гостевая парковка. Предоставляется круглосуточный доступ в здание. Инфраструктура бизнес-центра включает в себя кафе, ресторан и зоны отдыха. Помещение будет готово к въезду и началу аренды с 15 января 2026 года. Стоимость аренды: 36 000 руб/м2/год (213 000 руб. в месяц). В цену включено: коммунальные расходы, эксплуатационные расходы. В цену не включено: затраты на электричество, уборка.
Чтобы получить ПОДРОБНУЮ ПРЕЗЕНТАЦИЮ С ПЛАНИРОВКОЙ И ФОТОГРАФИЯМИ на этот объект, звоните. Высылаем в течение 15 минут по запросу! |
|
| Контактная информация | |
| Лот №: | 984931 |
| Контактное лицо: | Оксана Григорьевна |
| Телефон: | 8 (495) 822-78-71 доб.179 |


