Описание объекта лот №: 974287
| Возможное использование: | Офисы |
| Операция: | Аренда |
| Тип аренды: | Прямая аренда |
| Площадь: | 796.3 кв. м |
| Этаж: | 7 - 8-й |
| Местоположение | |
| Округ: | ЗАО |
| Метро: | Давыдково, Аминьевская, Рабочий поселок (МЦД) |
| От метро: | 10 мин. транспортом |
| Улица: | Рябиновая ул |
| ИФНС | № 7729 |
| Стоимость и условия | |
| Цена: | 1 658 958 руб. в месяц + НДС 25 000 руб. за 1м2 в год + НДС Сообщить о снижении цены ![]() |
| Форма налогообложения собственника: | НДС |
| Обеспечительный платеж: | 1 месяц |
| Эксплуатационные расходы включены: | ✓ |
| Характеристики | |
| Тип здания: | Бизнес центры класса B |
| Этажность здания: | 8 |
| Наличие кондиционирования: | ✓ |
| Наличие лифта: | ✓ |
| Наличие пропускной системы: | ✓ |
| Круглосуточный доступ: | ✓ |
| Наличие паркинга: | ✓ |
| Кол-во парковочных мест: | 150 |
| Наличие общепита в здании: | ✓ |
| Тип окон: | обычные |
| Описание | |
|
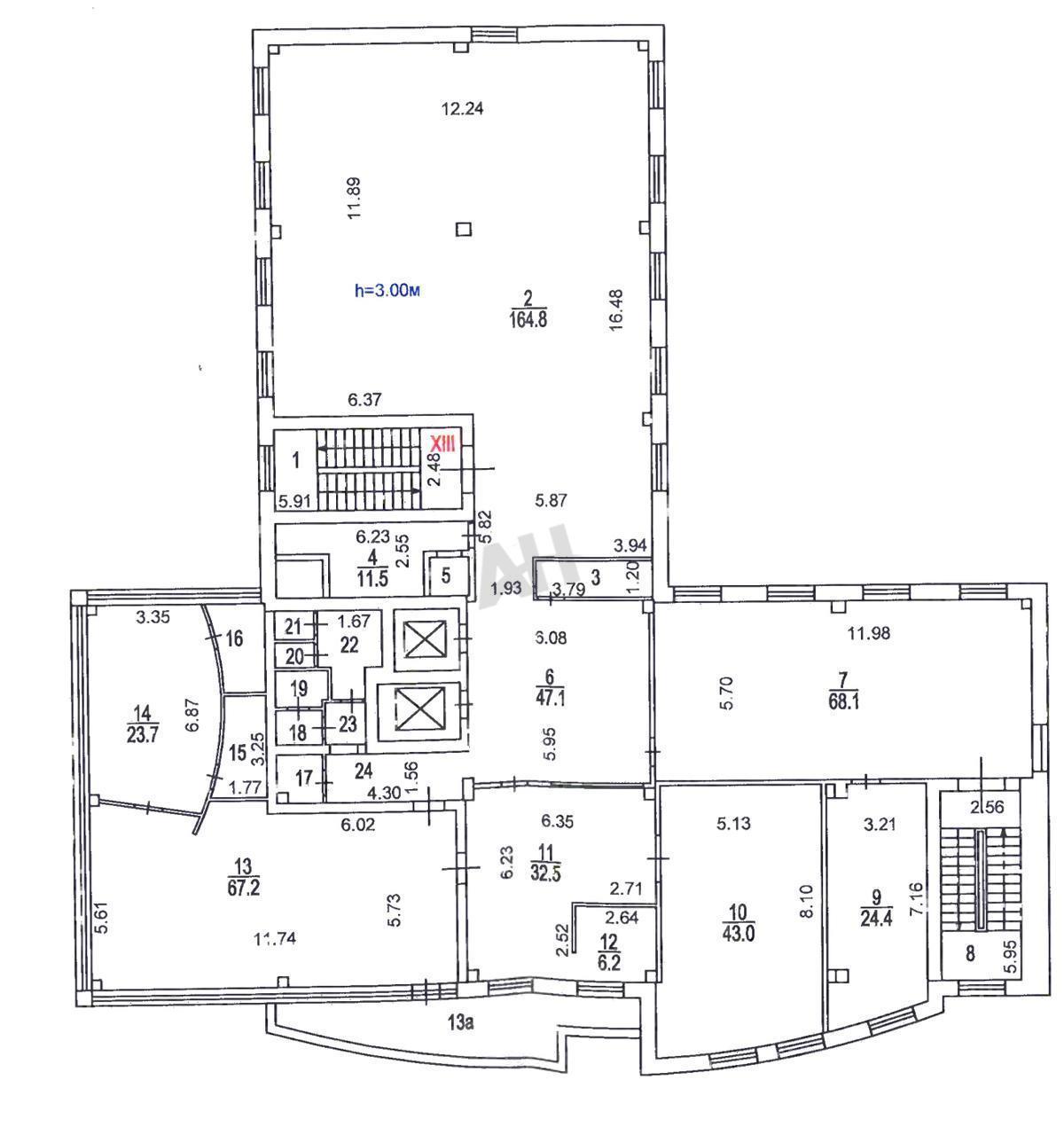
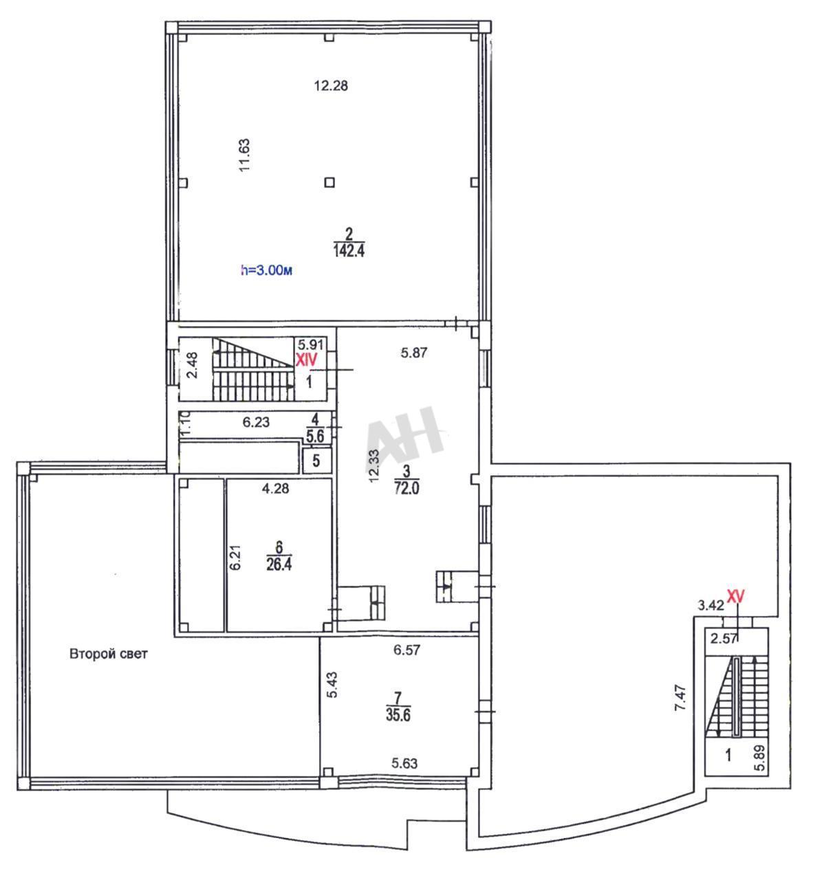
Лот №974287 Предлагается к аренде офисный блок общей площадью 796.3 кв.м., расположенный на 7-8м этажах в бизнес-центре класса Б+. Помещения с ремонтом, в рабочем состоянии, освобождение - за 30 дней с момента подписания договора аренды. Бизнес-центр «РТС Рябиновая» представляет собой современный деловой комплекс класса B+, расположенный в Западном административном округе Москвы, в районе Очаково-Матвеевское. Комплекс включает в себя офисные, торговые и складские блоки, что формирует единую среду для ведения бизнеса. Местоположение объекта отличается высокой транспортной доступностью и развитой инфраструктурой. Обеспечен удобный подъезд со стороны Можайского шоссе и МКАД, а расстояние до автобусной остановки «Троекуровский лес» составляет не более двух минут пешком. В ближайшее время в бизнес-центре запланированы работы по реновации, в рамках которых будут обновлены экстерьер здания, входные группы и ресепшн-зоны. Также будет проведена модернизация инженерных и охранных систем в соответствии с едиными стандартами сети бизнес-центров «РТС». После завершения преобразований объект станет семнадцатым в портфеле сети и получит официальное название «РТС Рябиновая», что подчеркнет его соответствие современным требованиям комфорта и функциональности. Стоимость аренды: 25 000 руб/м2/год (1 658 959 руб. в месяц), НДС оплачивается дополнительно. В цену включено: эксплуатационные расходы.
Чтобы получить ПОДРОБНУЮ ПРЕЗЕНТАЦИЮ С ПЛАНИРОВКОЙ И ФОТОГРАФИЯМИ на этот объект, звоните. Высылаем в течение 15 минут по запросу! |
|
| Контактная информация | |
| Лот №: | 974287 |
| Контактное лицо: | Светлана Анатольевна |
| Телефон: | 8 (495) 822-78-71 доб.236 |


