Описание объекта лот №: 974096
| Возможное использование: | Офисы |
| Операция: | Аренда |
| Тип аренды: | Прямая аренда |
| Площадь: | 496.7 кв. м |
| Этаж: | 3 |
| Местоположение | |
| Округ: | ЮАО |
| Метро: | Площадь Гагарина (МЦК), Шаболовская, Тульская |
| От метро: | 7 мин. пешком |
| Улица: | Орджоникидзе ул |
| ИФНС | № 7725 |
| Стоимость и условия | |
| Цена: | 1 207 271 руб. в месяц + НДС 29 167 руб. за 1м2 в год + НДС Сообщить о снижении цены ![]() |
| Форма налогообложения собственника: | НДС |
| Обеспечительный платеж: | 1 месяц |
| Эксплуатационные расходы включены: | ✓ |
| Характеристики | |
| Тип здания: | Административные здания |
| Отдельный вход: | ✓ |
| Этажность здания: | 3 |
| Наличие кондиционирования: | ✓ |
| Круглосуточный доступ: | ✓ |
| Наличие паркинга: | ✓ |
| Кол-во парковочных мест: | 7 |
| Наличие общепита в здании: | ✓ |
| Тип окон: | обычные |
| Электрическая мощность, кВт: | 45 |
| Описание | |
|
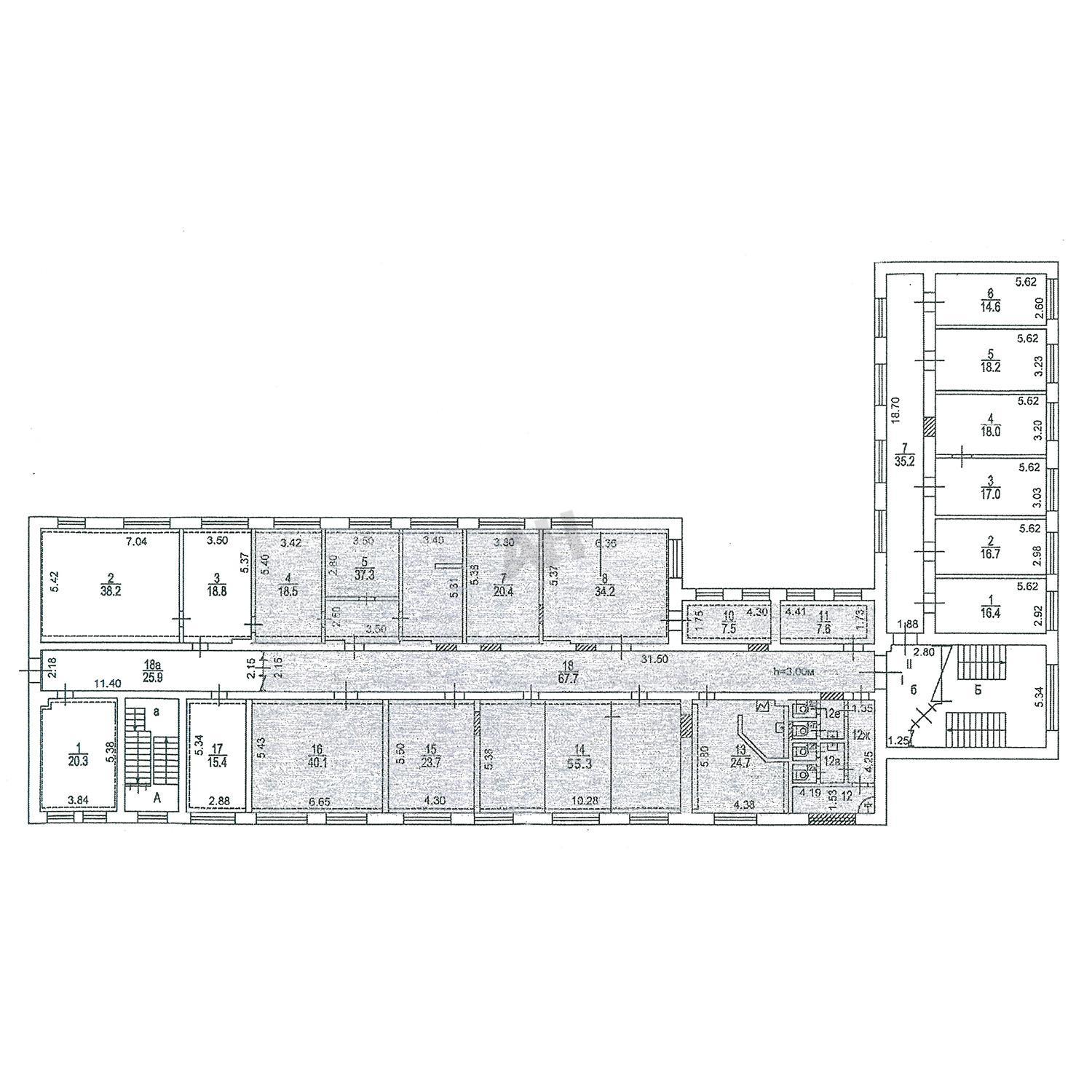
Лот №974096 Предлагается к сдаче в прямую аренду офисное помещение, состоящее из двух функциональных блоков. Первый блок площадью 136,1 кв. м полностью готов к въезду и эксплуатации. Второй блок площадью 360,6 кв. м находится в состоянии капитального ремонта, который будет завершен до 1 марта 2026 года. Блок включает в себя 18 светлых комнат, оборудованных кондиционерами, просторный коридор, кухню, санузел, зону ресепшена и серверную. Высота потолков составляет 3 метра, отделка стен — обои под покраску, установлены окна ПВХ и металлическая входная дверь. Для обеспечения безопасности и контроля доступа в здании функционирует система СКУД и домофон. На прилегающей территории имеется парковка, с возможностью предоставления 7 фиксированных мест для арендаторов. Помещение оснащено пожарной сигнализацией. Отдельно стоит отметить, что в здании отсутствует лифт. Санузел расположен в ремонтируемом блоке площадью 360,6 кв. м. На фото- актуальные фото до начала ремонта Стоимость аренды: 29 167 руб/м2/год (1 207 271 руб. в месяц), НДС оплачивается дополнительно. В цену включено: эксплуатационные расходы.
Чтобы получить ПОДРОБНУЮ ПРЕЗЕНТАЦИЮ С ПЛАНИРОВКОЙ И ФОТОГРАФИЯМИ на этот объект, звоните. Высылаем в течение 15 минут по запросу! |
|
| Контактная информация | |
| Лот №: | 974096 |
| Контактное лицо: | Светлана Анатольевна |
| Телефон: | 8 (495) 822-78-71 доб.236 |


