Описание объекта лот №: 973091
| Возможное использование: | Свободное назначение Банки Кафе/рестораны Магазины Офисы Салоны красоты Шоурумы |
| Операция: | Аренда |
| Тип аренды: | Прямая аренда |
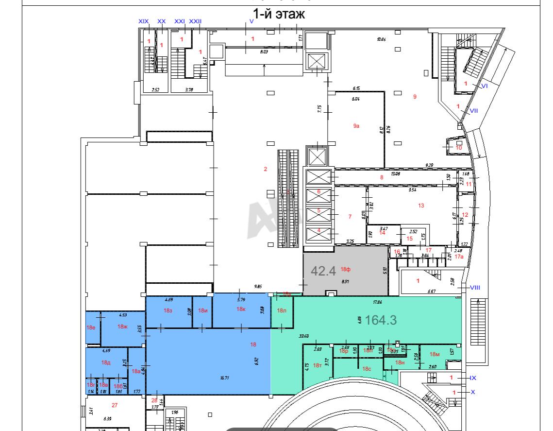
| Площадь: | 164 кв. м |
| Этаж: | 1 |
| Местоположение | |
| Округ: | СВАО |
| Метро: | Свиблово, Ботанический сад, Бабушкинская |
| От метро: | 1 мин. пешком |
| Улица: | Снежная ул |
| ИФНС | № 7716 |
| Стоимость и условия | |
| Цена: | 820 000 руб. в месяц 60 000 руб. за 1м2 в год Сообщить о снижении цены ![]() |
| Форма налогообложения собственника: | НДС |
| Обеспечительный платеж: | 2 месяца |
| Эксплуатационные расходы включены: | ✓ |
| Характеристики | |
| Тип здания: | Торговые центры |
| Этажность здания: | 14 |
| Наличие общепита в здании: | ✓ |
| Описание | |
|
Лот №973091 Сдается торговое помещение, в Многофункциональном комплексе расположен на севере Москвы, рядом со станцией метро «Свиблово». Здание с яркой архитектурой включает в себя офисную башню и районный торговый центр с галереей, ресторанами и якорными арендаторами. 1-ый этаж. Площадь 164 кв.м. Ранее был банк. Коммуникации централизованные, оборудованы вентиляционными и климатическими системами, охранно-пожарной сигнализацией, системами дымоудаления и огнетушения, полным комплектом телекоммуникаций. Возможность для вывески Наземная бесплатная парковка 50 м/м. Стоимость аренды: 60 000 руб/м2/год (820 000 руб. в месяц). В цену включено: эксплуатационные расходы. В цену не включено: затраты на электричество, коммунальные расходы, уборка.
Чтобы получить ПОДРОБНУЮ ПРЕЗЕНТАЦИЮ С ПЛАНИРОВКОЙ И ФОТОГРАФИЯМИ на этот объект, звоните. Высылаем в течение 15 минут по запросу! |
|
| Контактная информация | |
| Лот №: | 973091 |
| Контактное лицо: | Дмитрий Викторович |
| Телефон: | 8 (495) 822-78-71 доб.220 |


